Proyecto de una casa elegante con garaje para dos coches

275 m² de área total / 2960 ft² 2 pisos 3 dormitorios 3 baños
Proyecto de una casa elegante con garaje para dos coches
Click to view

Descripción

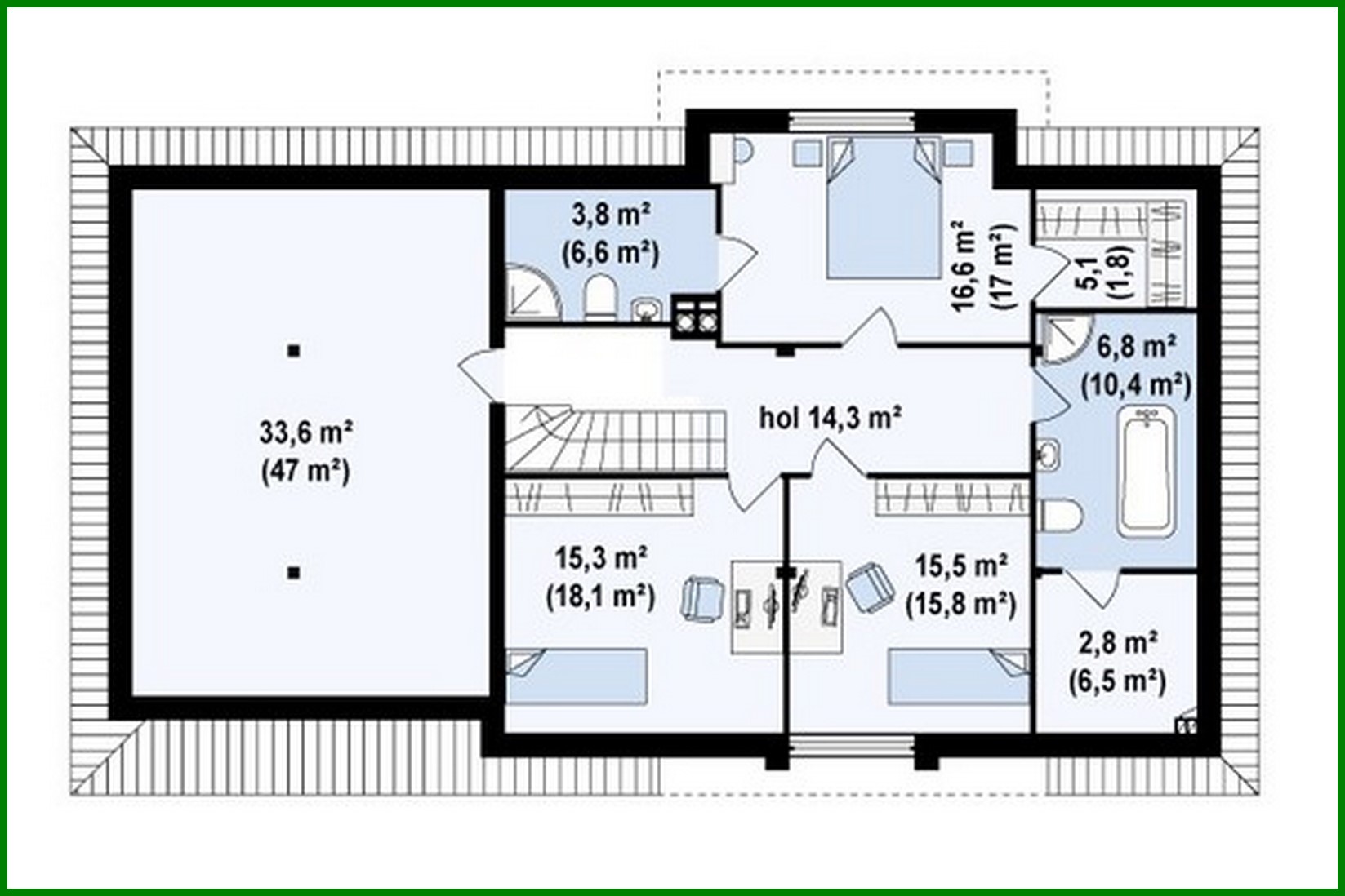
Project of a stylish cottage with a garage for two cars Número de plantas: 2 Área total: 275.00 m2 Área habitable: 201.00 m2 Altura de la casa: 8.00 m Altura del techo: 2.80 m Ángulo del techo: 38 ° Área del techo: 259.00 m2 Volumen: 685.30 m3 Número de dormitorios: 3 Número de baños: 3 Garaje: Two-car garage Tamaño mínimo del terreno (largo): 18.00 m Tamaño mínimo del terreno (ancho): 25.00 m Materiales: Paredes: aerated concrete, ceramic blocks Overlap: monolithic overlap Roofing: ceramic tile, metal tile, cement-sand tile Foundation: monolithic tape band

¿Te interesa este plano?

Contáctanos para obtener los planos completos, un presupuesto de construcción o adaptar este diseño a tu terreno y necesidades.

Solicitar más información

Galería de visualizaciones