Proyecto de una casa de campo con garaje y una gran claraboya

195 m² de área total / 2099 ft² 1 piso 4 dormitorios 3 baños
Proyecto de una casa de campo con garaje y una gran claraboya
Click to view

Descripción

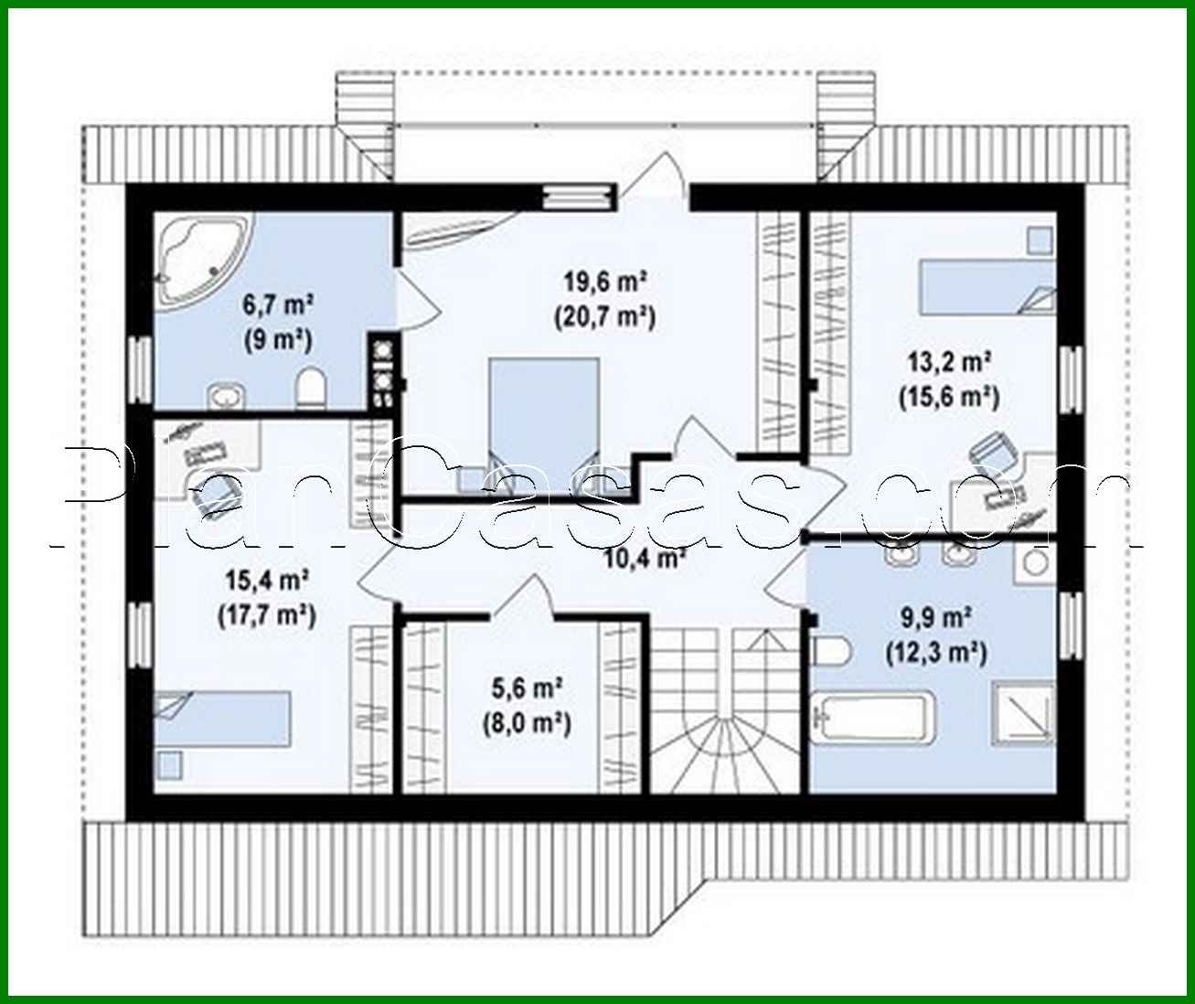
Project of a cottage with a garage and a large skylight Número de plantas: 2 Área total: 195.00 m2 Área habitable: 157.40 m2 Altura de la casa: 8.44 m Altura del techo: 2.80 m Ángulo del techo: 40 ° Área del techo: 210.00 m2 Volumen: 500.00 m3 Número de dormitorios: 4 Número de baños: 3 Garaje: Garage for one car Tamaño mínimo del terreno (largo): 17.00 m Tamaño mínimo del terreno (ancho): 21.00 m Materiales: Paredes: aerated concrete, ceramic blocks Overlap: monolithic overlap Roofing: ceramic tile, metal tile, cement-sand tile Foundation: monolithic tape band

¿Te interesa este plano?

Contáctanos para obtener los planos completos, un presupuesto de construcción o adaptar este diseño a tu terreno y necesidades.

Solicitar más información

Galería de visualizaciones