Proyecto de una casa de campo con ático y garaje frontal

169 m² de área total / 1819 ft² 1 piso 4 dormitorios 3 baños
Proyecto de una casa de campo con ático y garaje frontal
Click to view

Descripción

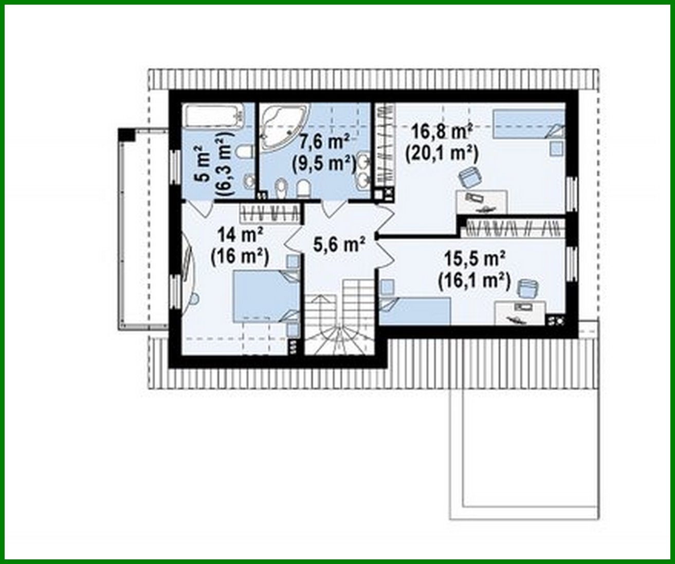
The project of a cottage with an attic, with a frontal garage Número de plantas: 2 Área total: 169.00 m2 Área habitable: 141.00 m2 Altura de la casa: 7.00 m Altura del techo: 2.80 m Ángulo del techo: 35 ° Área del techo: 151.00 m2 Volumen: 430.00 m3 Número de dormitorios: 4 Número de baños: 3 Garaje: Garage for one car Tamaño mínimo del terreno (largo): 20.00 m Tamaño mínimo del terreno (ancho): 20.00 m Materiales: Paredes: aerated concrete, ceramic blocks Overlap: monolithic overlap Roofing: ceramic tile, metal tile, cement-sand tile Foundation: monolithic tape band

¿Te interesa este plano?

Contáctanos para obtener los planos completos, un presupuesto de construcción o adaptar este diseño a tu terreno y necesidades.

Solicitar más información

Galería de visualizaciones