Proyecto de casa de campo con garaje integrado, terraza en esquina y estudio

263 m² de área total / 2831 ft² 2 pisos 3 dormitorios 2 baños
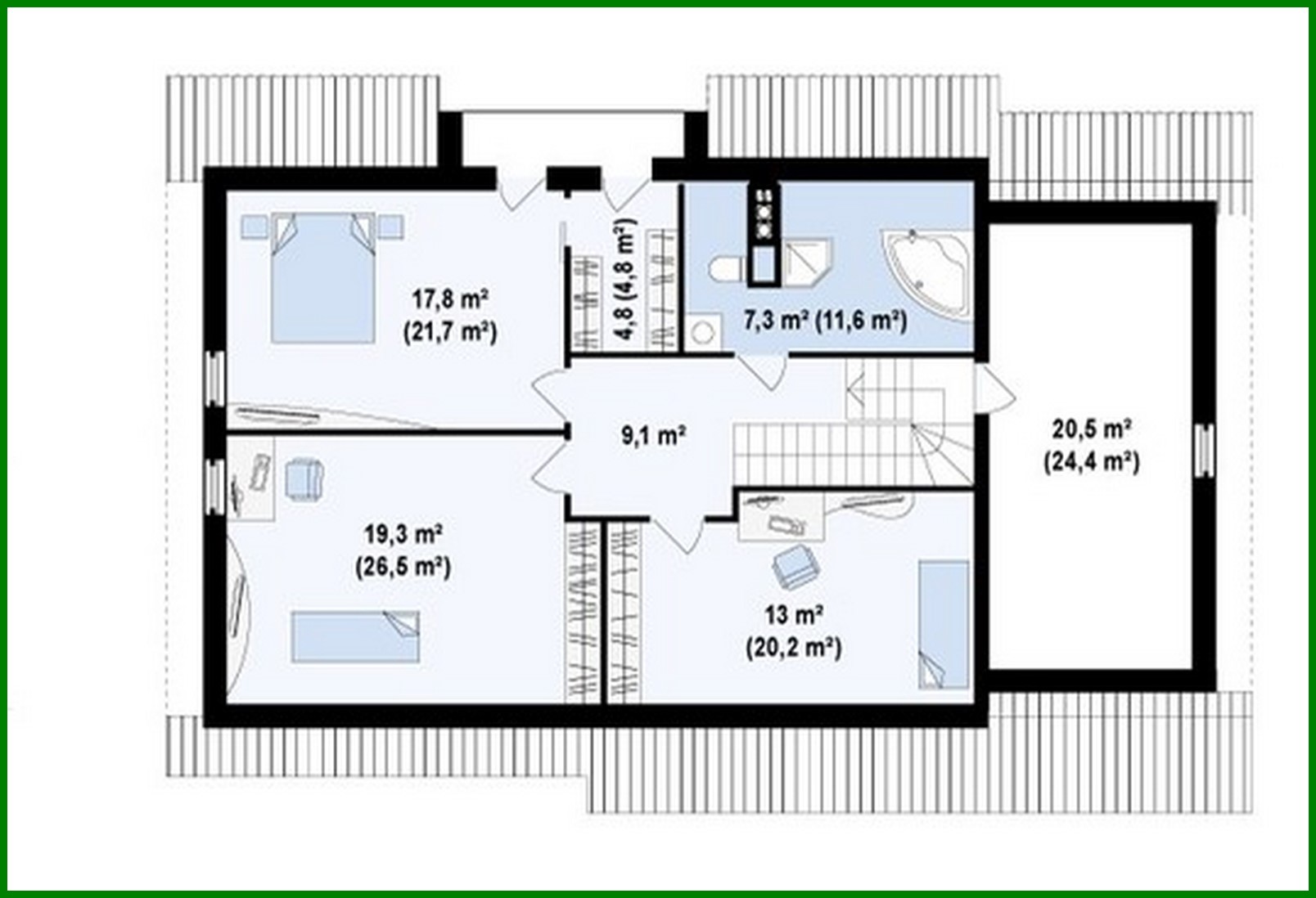
Proyecto de casa de campo con garaje integrado, terraza en esquina y estudio
Click to view

Descripción

Cottage project with built-in garage, corner terrace and study Número de plantas: 2 Área total: 263.40 m2 Área habitable: 210.90 m2 Altura de la casa: 7.90 m Altura del techo: 2.80 m Ángulo del techo: 38 ° Área del techo: 257.66 m2 Volumen: 597.30 m3 Número de dormitorios: 3 Número de baños: 2 Garaje: Garage for one car Tamaño mínimo del terreno (largo): 18.14 m Tamaño mínimo del terreno (ancho): 27.74 m Materiales: Paredes: aerated concrete, ceramic blocks Overlap: monolithic overlap Roofing: ceramic tile, metal tile, cement-sand tile Foundation: monolithic tape band

¿Te interesa este plano?

Contáctanos para obtener los planos completos, un presupuesto de construcción o adaptar este diseño a tu terreno y necesidades.

Solicitar más información

Galería de visualizaciones