Proyecto de casa con ático, salón y garaje doble

246 m² de área total / 2648 ft² 1 piso 4 dormitorios 3 baños
Proyecto de casa con ático, salón y garaje doble
Click to view

Descripción

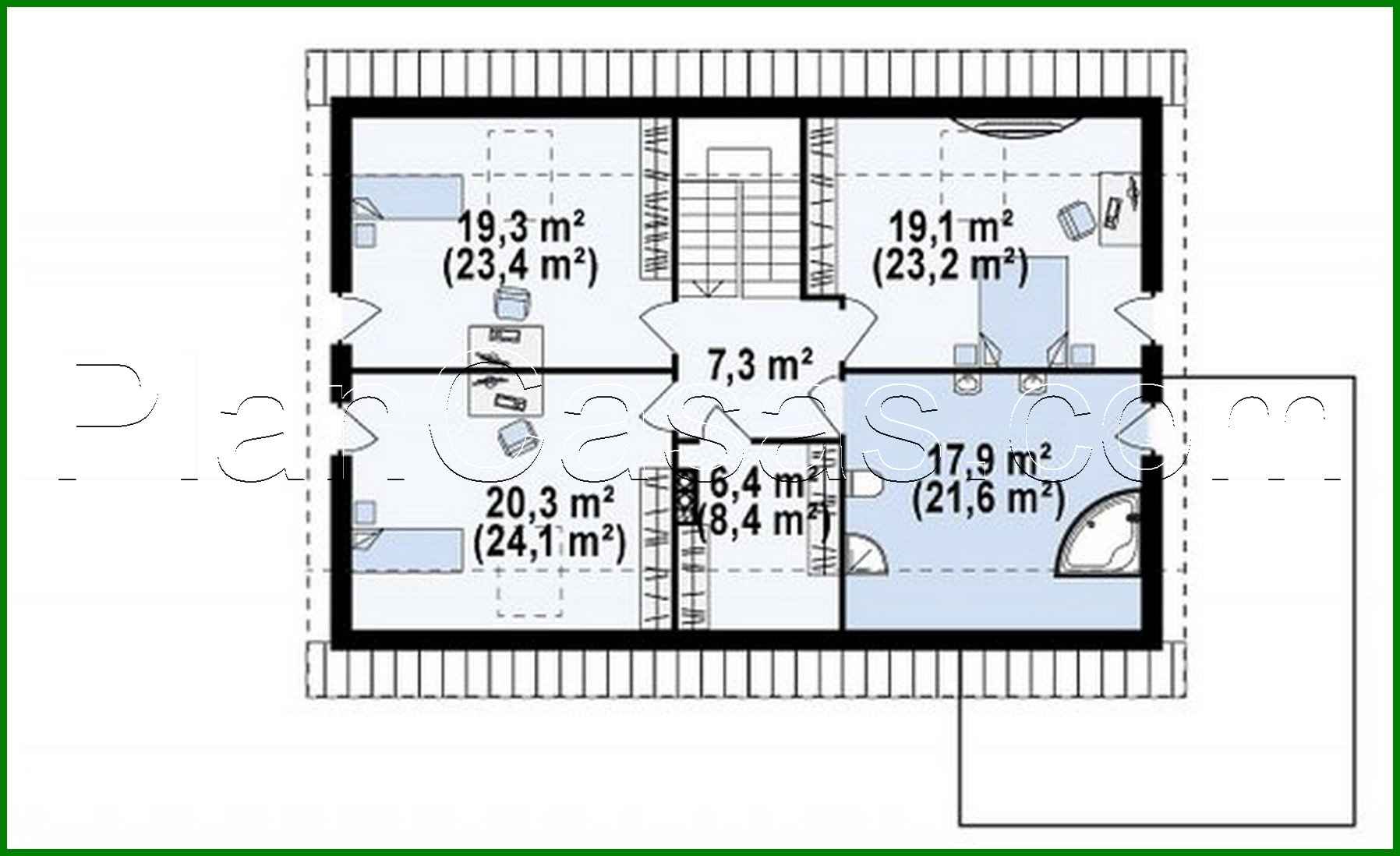
House project with an attic, a living room and a double garage Número de plantas: 2 Área total: 246.00 m2 Área habitable: 186.00 m2 Altura de la casa: 8.00 m Altura del techo: 2.80 m Ángulo del techo: 40 ° Área del techo: 214.00 m2 Volumen: 630.00 m3 Número de dormitorios: 4 Número de baños: 3 Garaje: Two-car garage Tamaño mínimo del terreno (largo): 24.00 m Tamaño mínimo del terreno (ancho): 20.00 m Materiales: Paredes: aerated concrete, ceramic blocks Overlap: monolithic overlap Roofing: ceramic tile, metal tile, cement-sand tile Foundation: monolithic tape band

¿Te interesa este plano?

Contáctanos para obtener los planos completos, un presupuesto de construcción o adaptar este diseño a tu terreno y necesidades.

Solicitar más información

Galería de visualizaciones