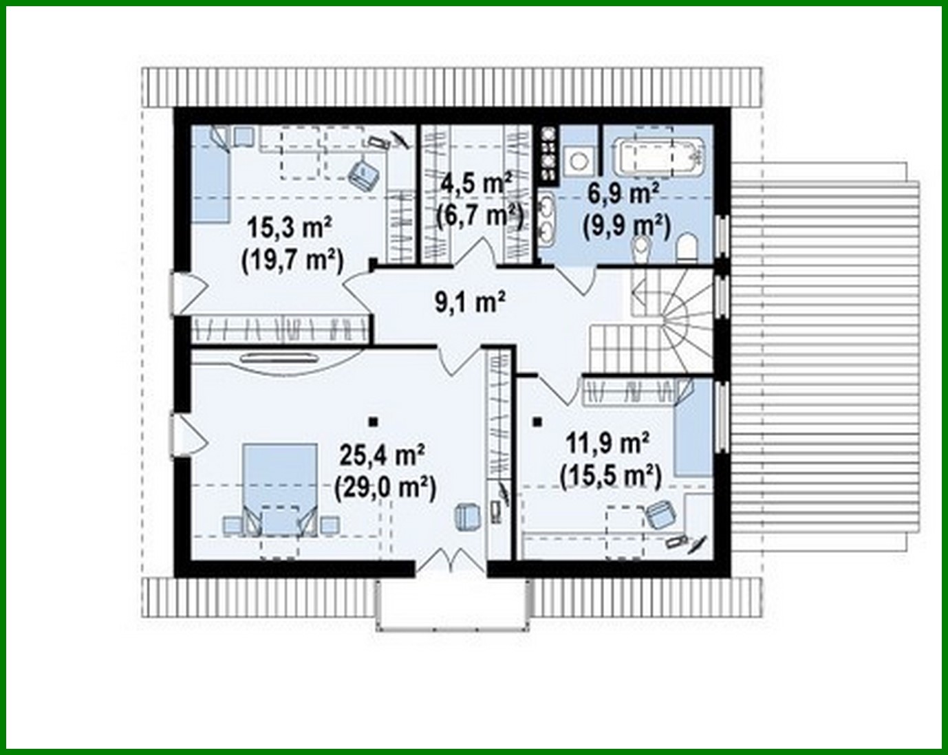
Proyecto de casa con garaje y un ático original

195 m² de área total / 2099 ft² 1 piso 4 dormitorios 2 baños
Proyecto de casa con garaje y un ático original
Click to view

Descripción

House project with a garage and an original attic Número de plantas: 2 Área total: 194.80 m2 Área habitable: 153.60 m2 Altura de la casa: 8.47 m Altura del techo: 2.80 m Ángulo del techo: 40 ° Área del techo: 226.00 m2 Volumen: 530.00 m3 Número de dormitorios: 4 Número de baños: 2 Garaje: Garage for one car Tamaño mínimo del terreno (largo): 22.18 m Tamaño mínimo del terreno (ancho): 17.78 m Materiales: Paredes: aerated concrete, ceramic blocks Overlap: monolithic overlap Roofing: ceramic tile, metal tile, cement-sand tile Foundation: monolithic tape band

¿Te interesa este plano?

Contáctanos para obtener los planos completos, un presupuesto de construcción o adaptar este diseño a tu terreno y necesidades.

Solicitar más información

Galería de visualizaciones