Proyecto de una casa de campo con ático, oficina y terraza sobre el garaje

168 m² de área total / 1808 ft² 2 pisos 3 dormitorios 2 baños
Proyecto de una casa de campo con ático, oficina y terraza sobre el garaje
Click to view

Descripción

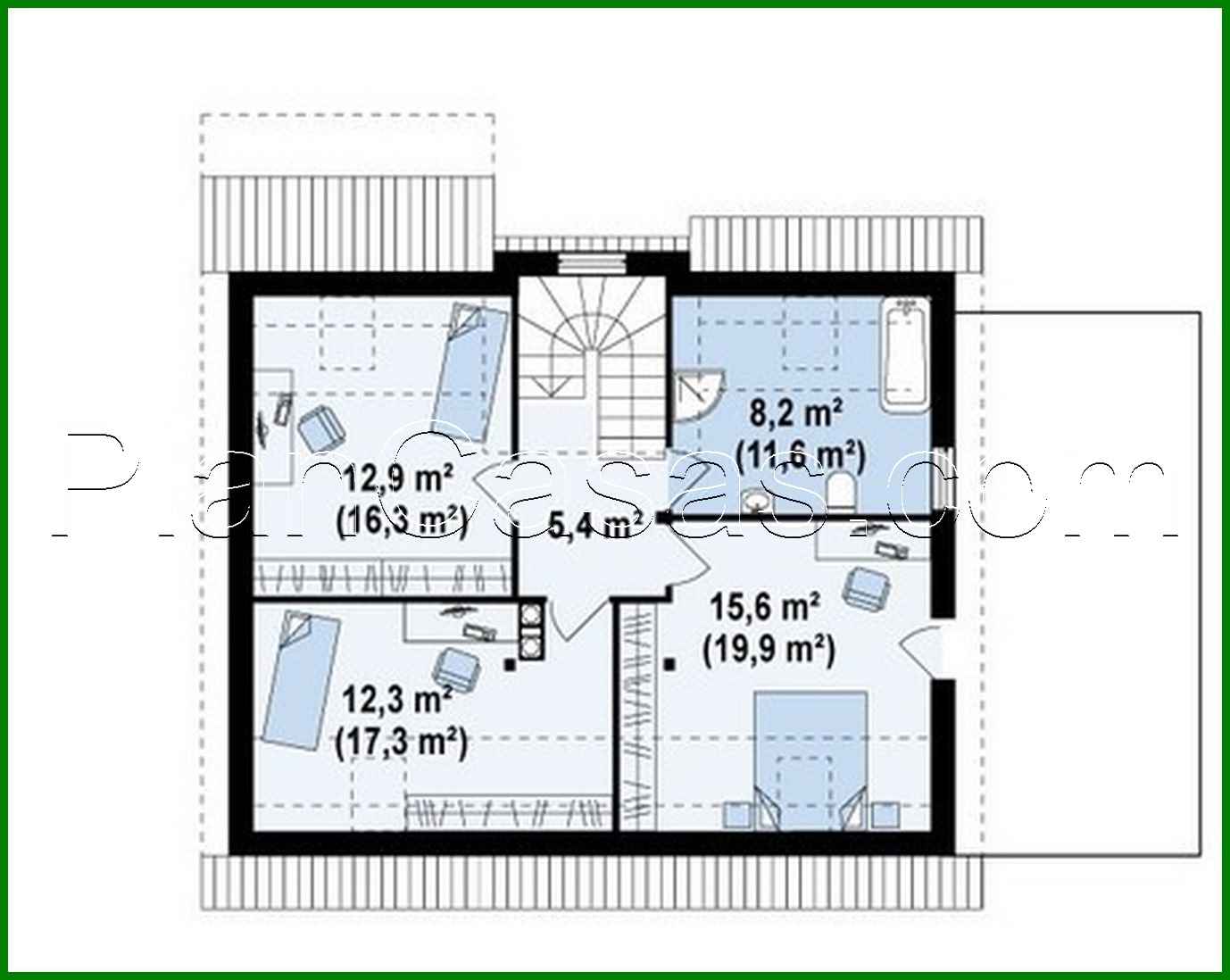
Project of a cottage with an attic, an office and a terrace above the garage Número de plantas: 2 Área total: 167.70 m2 Área habitable: 127.60 m2 Altura de la casa: 7.62 m Altura del techo: 2.80 m Ángulo del techo: 38 ° / 8 ° Área del techo: 145.00 m2 Volumen: 410.00 m3 Número de dormitorios: 3 Número de baños: 2 Garaje: Garage for one car Tamaño mínimo del terreno (largo): 21.28 m Tamaño mínimo del terreno (ancho): 16.86 m Materiales: Paredes: aerated concrete, ceramic blocks Overlap: monolithic overlap Roofing: ceramic tile, metal tile, cement-sand tile Foundation: monolithic tape band

¿Te interesa este plano?

Contáctanos para obtener los planos completos, un presupuesto de construcción o adaptar este diseño a tu terreno y necesidades.

Solicitar más información

Galería de visualizaciones