Proyecto de casa con terraza acristalada

196 m² de área total / 2110 ft² 2 pisos 3 dormitorios 3 baños
Proyecto de casa con terraza acristalada
Click to view

Descripción

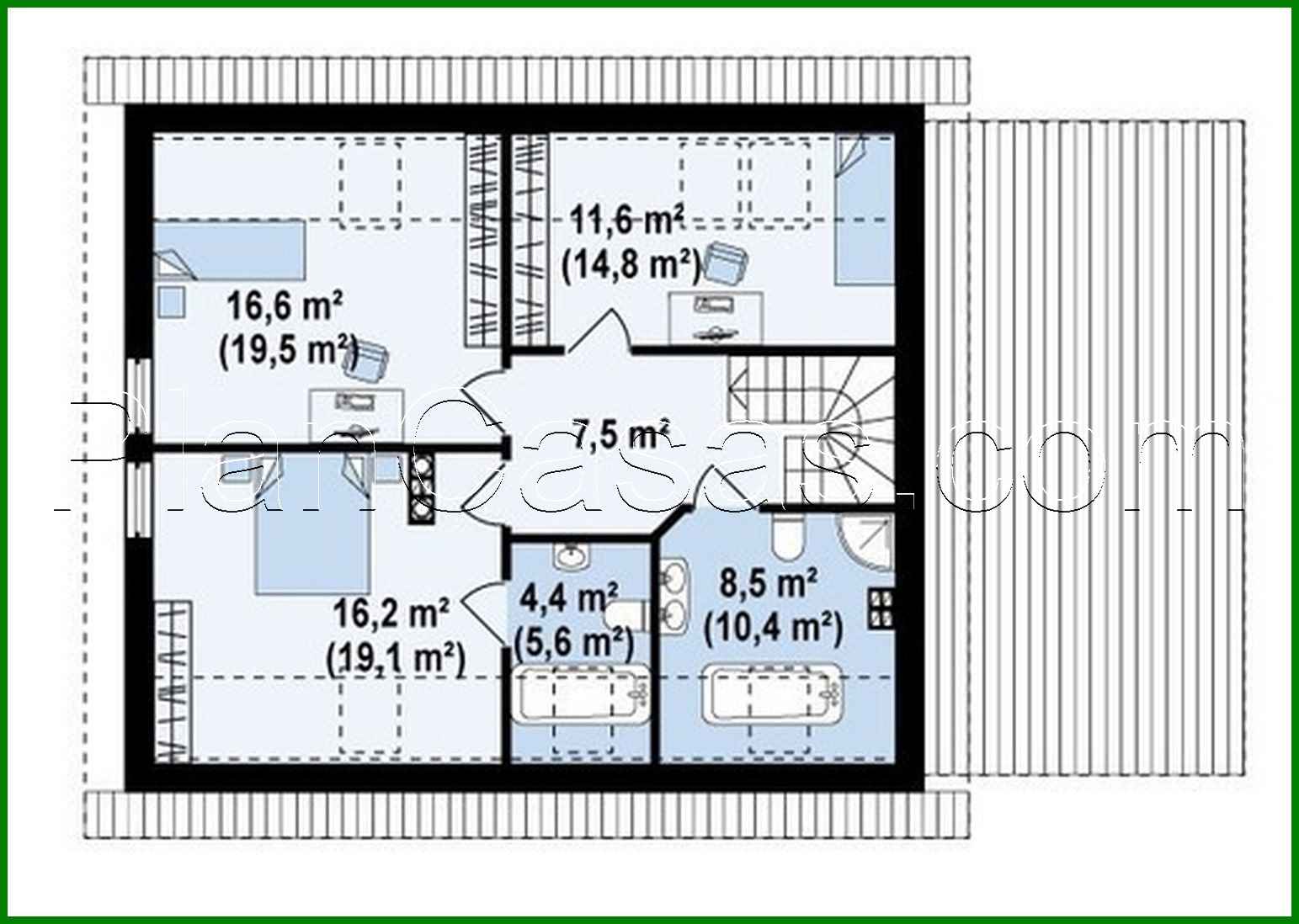
House project with a glazed terrace Número de plantas: 2 Área total: 195.90 m2 Área habitable: 157.80 m2 Altura de la casa: 8.00 m Altura del techo: 2.80 m Ángulo del techo: 35 ° / 35 ° Área del techo: 193.00 m2 Volumen: 496.00 m3 Número de dormitorios: 3 Número de baños: 3 Garaje: Garage for one car Tamaño mínimo del terreno (largo): 21.64 m Tamaño mínimo del terreno (ancho): 19.28 m Materiales: Paredes: aerated concrete, ceramic blocks Overlap: monolithic overlap Roofing: ceramic tile, metal tile, cement-sand tile Foundation: monolithic tape band

¿Te interesa este plano?

Contáctanos para obtener los planos completos, un presupuesto de construcción o adaptar este diseño a tu terreno y necesidades.

Solicitar más información

Galería de visualizaciones