Proyecto de una casa moderna y acogedora

194 m² de área total / 2088 ft² 2 pisos 4 dormitorios 2 baños
Proyecto de una casa moderna y acogedora
Click to view

Descripción

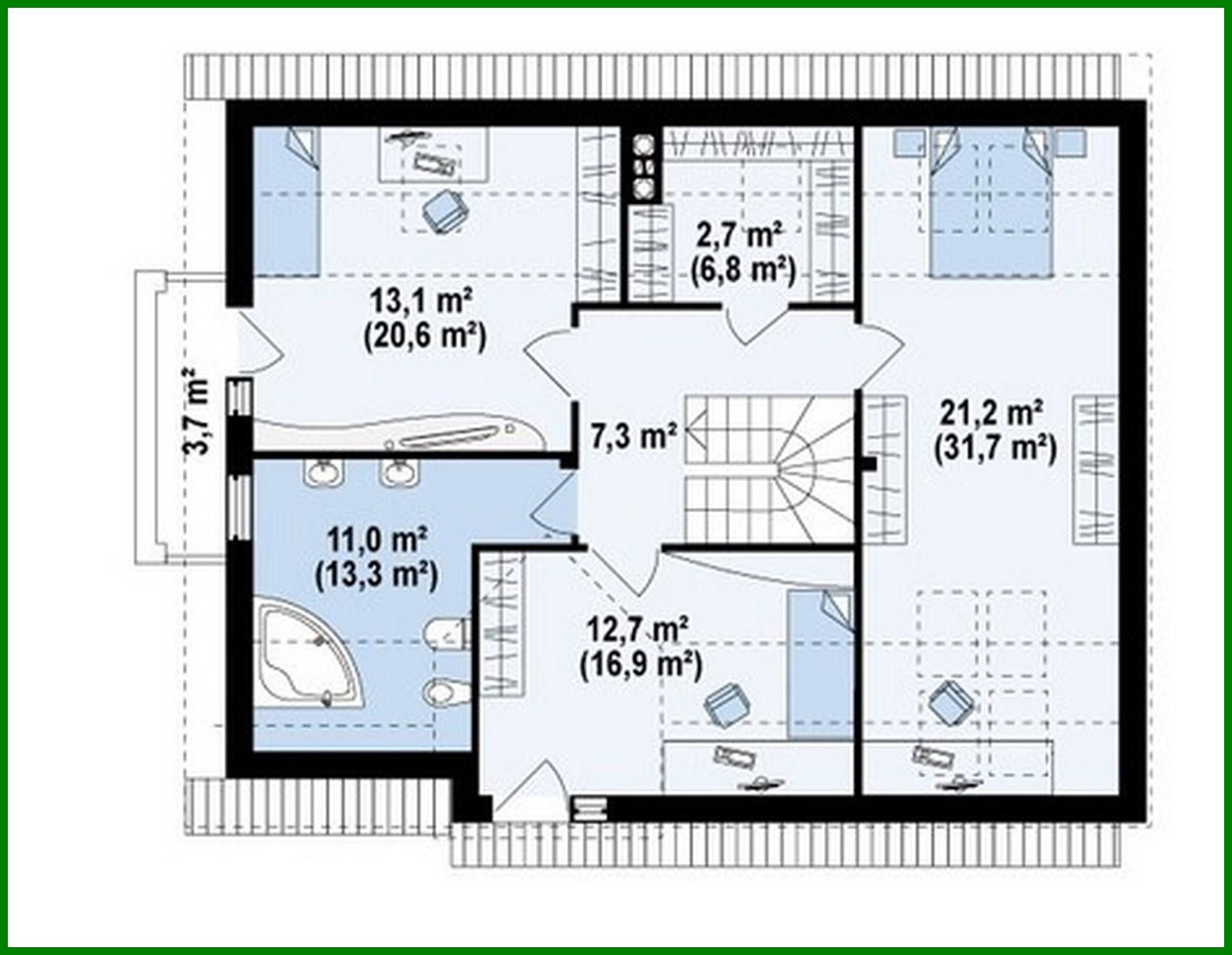
The project of a modern cozy cottage Número de plantas: 2 Área total: 194.40 m2 Área habitable: 135.40 m2 Altura de la casa: 7.80 m Altura del techo: 2.80 m Ángulo del techo: 35 ° Área del techo: 167.00 m2 Volumen: 470.00 m3 Número de dormitorios: 4 Número de baños: 2 Garaje: Garage for one car Tamaño mínimo del terreno (largo): 17.78 m Tamaño mínimo del terreno (ancho): 19.69 m Materiales: Paredes: aerated concrete, ceramic blocks Overlap: monolithic overlap Roofing: ceramic tile, metal tile, cement-sand tile Foundation: monolithic tape band

¿Te interesa este plano?

Contáctanos para obtener los planos completos, un presupuesto de construcción o adaptar este diseño a tu terreno y necesidades.

Solicitar más información

Galería de visualizaciones