Proyecto de una casa de campo de dos plantas con garaje para dos coches

226 m² de área total / 2433 ft² 2 pisos 4 dormitorios 3 baños
Proyecto de una casa de campo de dos plantas con garaje para dos coches
Click to view

Descripción

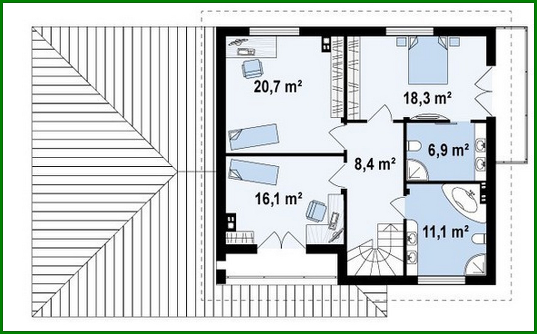
The project of a two-story cottage with a garage for two cars Número de plantas: 2 Área total: 225.70 m2 Área habitable: 172.00 m2 Altura de la casa: 9.55 m Altura del techo: 2.80 m Ángulo del techo: 30 ° / 25 ° Área del techo: 256.00 m2 Volumen: 464.00 m3 Número de dormitorios: 4 Número de baños: 3 Garaje: Two-car garage Tamaño mínimo del terreno (largo): 23.68 m Tamaño mínimo del terreno (ancho): 18.68 m Materiales: Paredes: aerated concrete, ceramic blocks Overlap: monolithic overlap Roofing: ceramic tile, metal tile, cement-sand tile Foundation: monolithic tape band

¿Te interesa este plano?

Contáctanos para obtener los planos completos, un presupuesto de construcción o adaptar este diseño a tu terreno y necesidades.

Solicitar más información

Galería de visualizaciones