Proyecto de una casa de campo de dos plantas con garaje

135 m² de área total / 1453 ft² 2 pisos 3 dormitorios 2 baños
Proyecto de una casa de campo de dos plantas con garaje
Click to view

Descripción

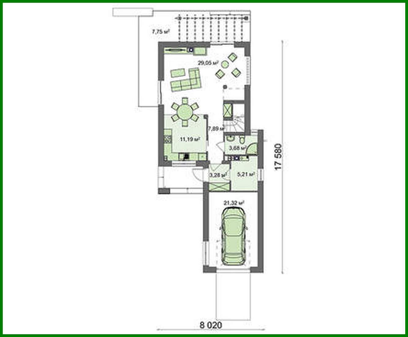
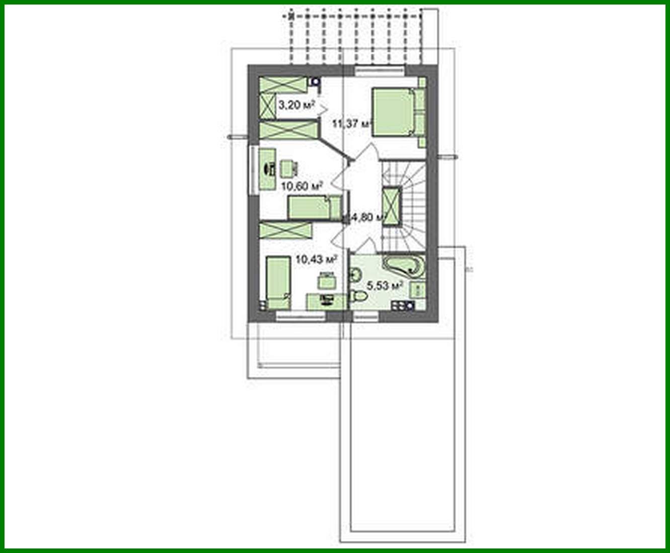
The project of a two-story cottage with a garage Número de plantas: 2 Área total: 135.30 m2 Área habitable: 61.45 m2 Altura de la casa: 8.12 m Altura del techo: 2.80 m Ángulo del techo: 30 ° Área del techo: 103.00 m2 Volumen: 338.00 m3 Número de dormitorios: 3 Número de baños: 2 Garaje: Garage for one car Tamaño mínimo del terreno (largo): 14.94 m Tamaño mínimo del terreno (ancho): 25.50 m Materiales: Paredes: aerated concrete, ceramic blocks Overlap: monolithic overlap Roofing: ceramic tile, metal tile, cement-sand tile Foundation: monolithic tape

¿Te interesa este plano?

Contáctanos para obtener los planos completos, un presupuesto de construcción o adaptar este diseño a tu terreno y necesidades.

Solicitar más información

Galería de visualizaciones