Proyecto de casa con ático y garaje para dos coches

234 m² de área total / 2519 ft² 2 pisos dormitorios
Proyecto de casa con ático y garaje para dos coches
Click to view

Descripción

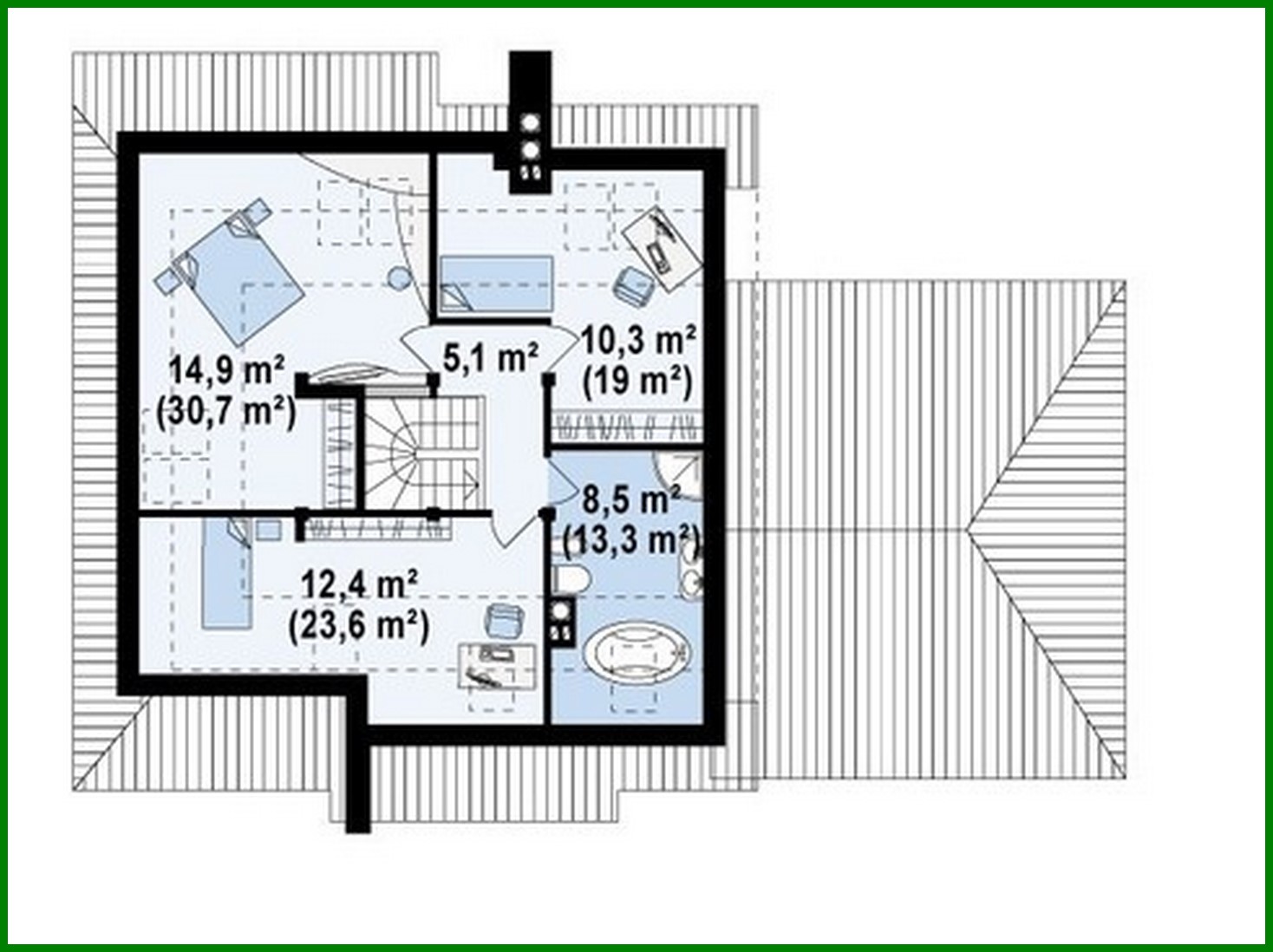
House project with an attic and a garage for two cars Número de plantas: 2 Área total: 234.00 m2 Área habitable: 146.00 m2 Altura de la casa: 7.00 m Altura del techo: 2.80 m Ángulo del techo: 30 ° / 34.5 ° Área del techo: 251.00 m2 Volumen: 538.00 m3 Garaje: Two-car garage Tamaño mínimo del terreno (largo): 24.00 m Tamaño mínimo del terreno (ancho): 18.00 m Materiales: Paredes: aerated concrete, ceramic blocks Overlap: monolithic overlap Roofing: ceramic tile, metal tile, cement-sand tile Foundation: monolithic tape band

¿Te interesa este plano?

Contáctanos para obtener los planos completos, un presupuesto de construcción o adaptar este diseño a tu terreno y necesidades.

Solicitar más información

Galería de visualizaciones