Proyecto de una casa de campo pequeña con terraza frontal

84 m² de área total / 904 ft² 1 piso 3 dormitorios 2 baños
Proyecto de una casa de campo pequeña con terraza frontal
Click to view

Descripción

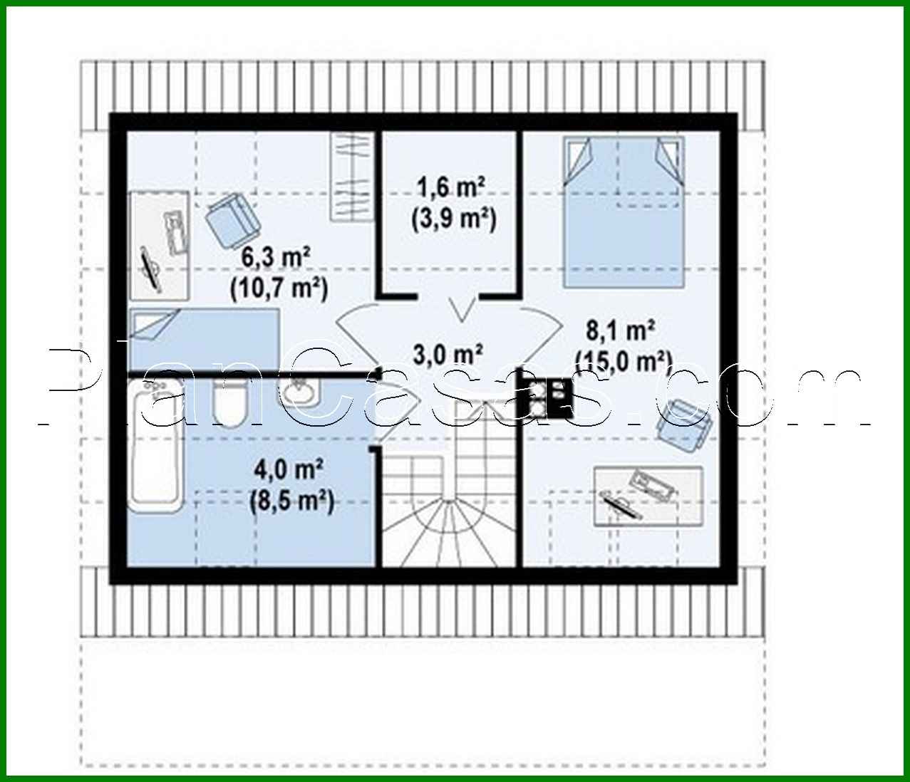
The project of a small country house with a front terrace Número de plantas: 2 Área total: 84.00 m2 Área habitable: 65.90 m2 Altura de la casa: 7.00 m Altura del techo: 2.80 m Ángulo del techo: 45 ° Área del techo: 93.60 m2 Volumen: 188.40 m3 Número de dormitorios: 3 Número de baños: 2 Tamaño mínimo del terreno (largo): 15.58 m Tamaño mínimo del terreno (ancho): 14.48 m Área construida: 84.5 m2 Materiales: Paredes: aerated concrete, ceramic blocks Overlap: monolithic overlap Roofing: ceramic tile, metal tile, cement-sand tile Foundation: monolithic tape band

¿Te interesa este plano?

Contáctanos para obtener los planos completos, un presupuesto de construcción o adaptar este diseño a tu terreno y necesidades.

Solicitar más información

Galería de visualizaciones