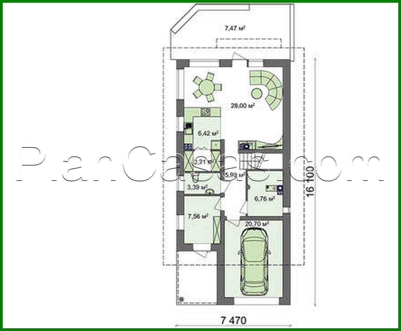
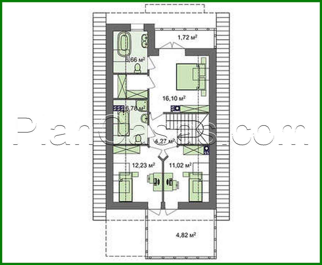
Proyecto de una casa para un terreno estrecho, con garaje y terraza encima

153 m² de área total / 1647 ft² 2 pisos 3 dormitorios 3 baños
Proyecto de una casa para un terreno estrecho, con garaje y terraza encima
Click to view

Descripción

House project for a narrow plot, with a garage and a terrace above it Número de plantas: 2 Área total: 153.09 m2 Área habitable: 67.35 m2 Altura de la casa: 7.43 m Altura del techo: 2.80 m Ángulo del techo: 37 ° Área del techo: 145.60 m2 Volumen: 358.70 m3 Número de dormitorios: 3 Número de baños: 3 Garaje: Garage for one car Tamaño mínimo del terreno (largo): 15.44 m Tamaño mínimo del terreno (ancho): 23.54 m Área construida: 106.5 m2 Materiales: Paredes: aerated concrete, ceramic blocks Overlap: monolithic overlap Roofing: metal tile, ceramic tile, bitumen Foundation: monolithic tape

¿Te interesa este plano?

Contáctanos para obtener los planos completos, un presupuesto de construcción o adaptar este diseño a tu terreno y necesidades.

Solicitar más información

Galería de visualizaciones