Proyecto de una casa de campo de dos plantas para un terreno estrecho

94 m² de área total / 1012 ft² 2 pisos 3 dormitorios 2 baños
Proyecto de una casa de campo de dos plantas para un terreno estrecho
Click to view

Descripción

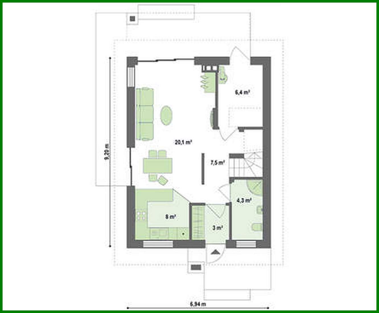
The project of a two-story cottage for a narrow site Número de plantas: 2 Área total: 93.70 m2 Área habitable: 93.70 m2 Altura de la casa: 8.12 m Altura del techo: 2.80 m Ángulo del techo: 30 ° Área del techo: 101.50 m2 Volumen: 248.80 m3 Número de dormitorios: 3 Número de baños: 2 Tamaño mínimo del terreno (largo): 13.94 m Tamaño mínimo del terreno (ancho): 17.20 m Área construida: 64.6 m2 Materiales: Paredes: aerated concrete, ceramic blocks Overlap: monolithic overlap Roofing: ceramic tile, metal tile, cement-sand tile Foundation: monolithic tape

¿Te interesa este plano?

Contáctanos para obtener los planos completos, un presupuesto de construcción o adaptar este diseño a tu terreno y necesidades.

Solicitar más información

Galería de visualizaciones