Proyecto de una casa clásica elegante de una planta

104 m² de área total / 1119 ft² 1 piso 3 dormitorios 2 baños
Proyecto de una casa clásica elegante de una planta
Click to view

Descripción

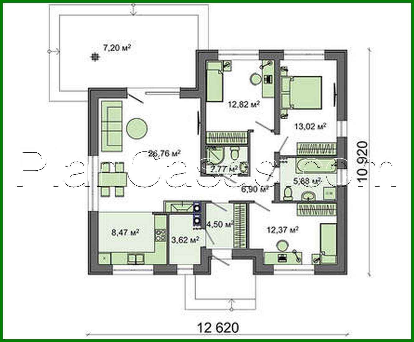
Project of a stylish one-story classic house Número de plantas: 1 Área total: 104.31 m2 Área habitable: 64.97 m2 Altura de la casa: 6.43 m Altura del techo: 2.80 m Ángulo del techo: 25 ° Área del techo: 193.50 m2 Volumen: 248.00 m3 Número de dormitorios: 3 Número de baños: 2 Tamaño mínimo del terreno (largo): 18.49 m Tamaño mínimo del terreno (ancho): 20.14 m Área construida: 165.5 m2 SIZES OF ROOMS Materiales: Paredes: aerated concrete blocks Techo: on wooden beams Roofing: metal tile, ceramic tile, bitumen Foundation: monolithic tape

¿Te interesa este plano?

Contáctanos para obtener los planos completos, un presupuesto de construcción o adaptar este diseño a tu terreno y necesidades.

Solicitar más información

Galería de visualizaciones