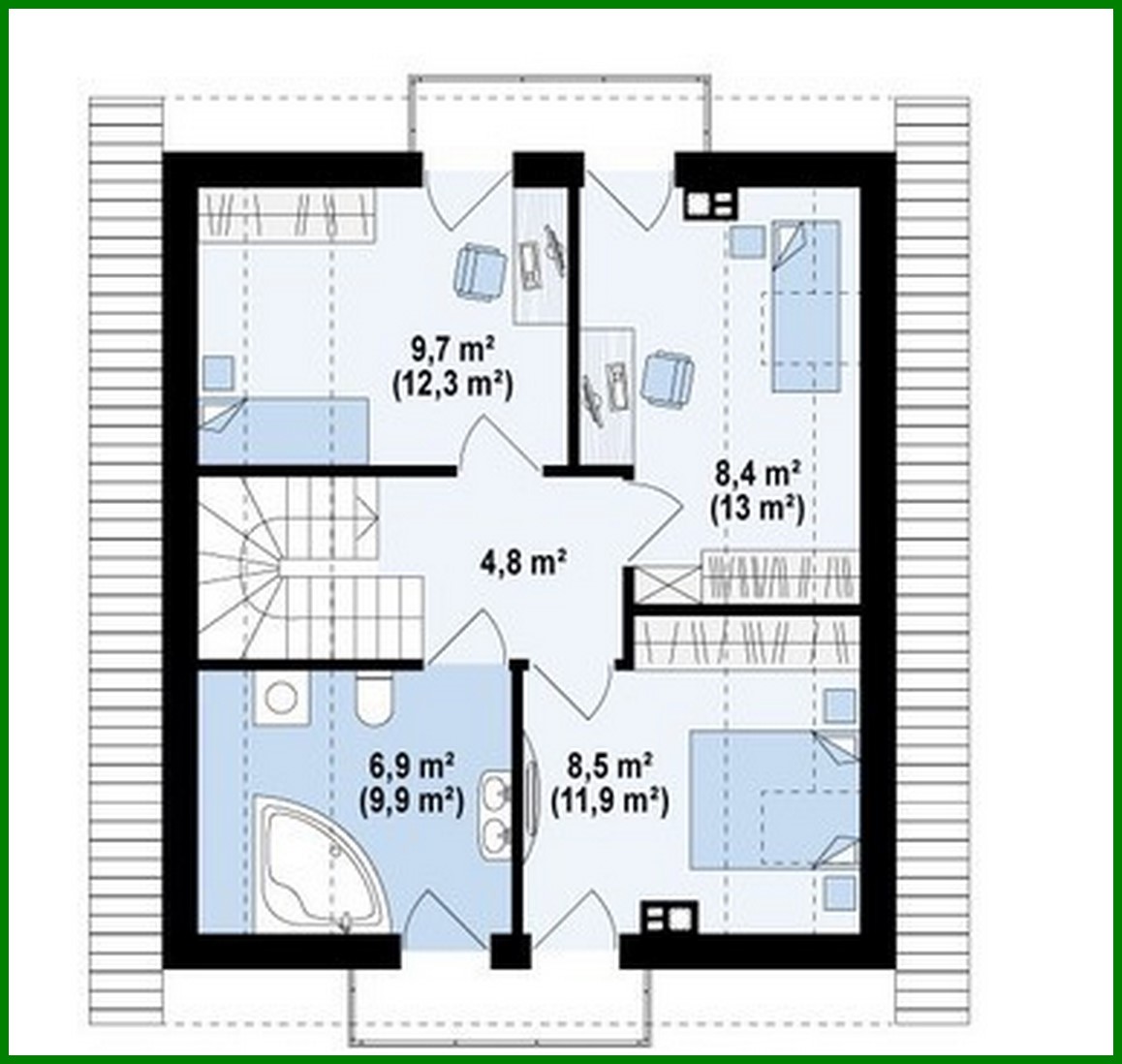
Proyecto de una casa de campo pequeña y ordenada con ático y techo a dos aguas

109 m² de área total / 1173 ft² 1 piso 3 dormitorios 2 baños
Proyecto de una casa de campo pequeña y ordenada con ático y techo a dos aguas
Click to view

Descripción

The project of a small neat country house with an attic and a gable roof Número de plantas: 2 Área total: 108.90 m2 Área habitable: 95.30 m2 Altura de la casa: 7.71 m Altura del techo: 2.80 m Ángulo del techo: 40 ° Área del techo: 125.00 m2 Volumen: 317.00 m3 Número de dormitorios: 3 Número de baños: 2 Tamaño mínimo del terreno (largo): 16.94 m Tamaño mínimo del terreno (ancho): 15.04 m Área construida: 74 m2 Materiales: Paredes: aerated concrete, ceramic blocks Overlap: monolithic overlap Roofing: ceramic tile, metal tile, cement-sand tile Foundation: monolithic tape band

¿Te interesa este plano?

Contáctanos para obtener los planos completos, un presupuesto de construcción o adaptar este diseño a tu terreno y necesidades.

Solicitar más información

Galería de visualizaciones