Proyecto de una casa pequeña con terraza sobre el garaje

180 m² de área total / 1938 ft² 1 piso 4 dormitorios 2 baños
Proyecto de una casa pequeña con terraza sobre el garaje
Click to view

Descripción

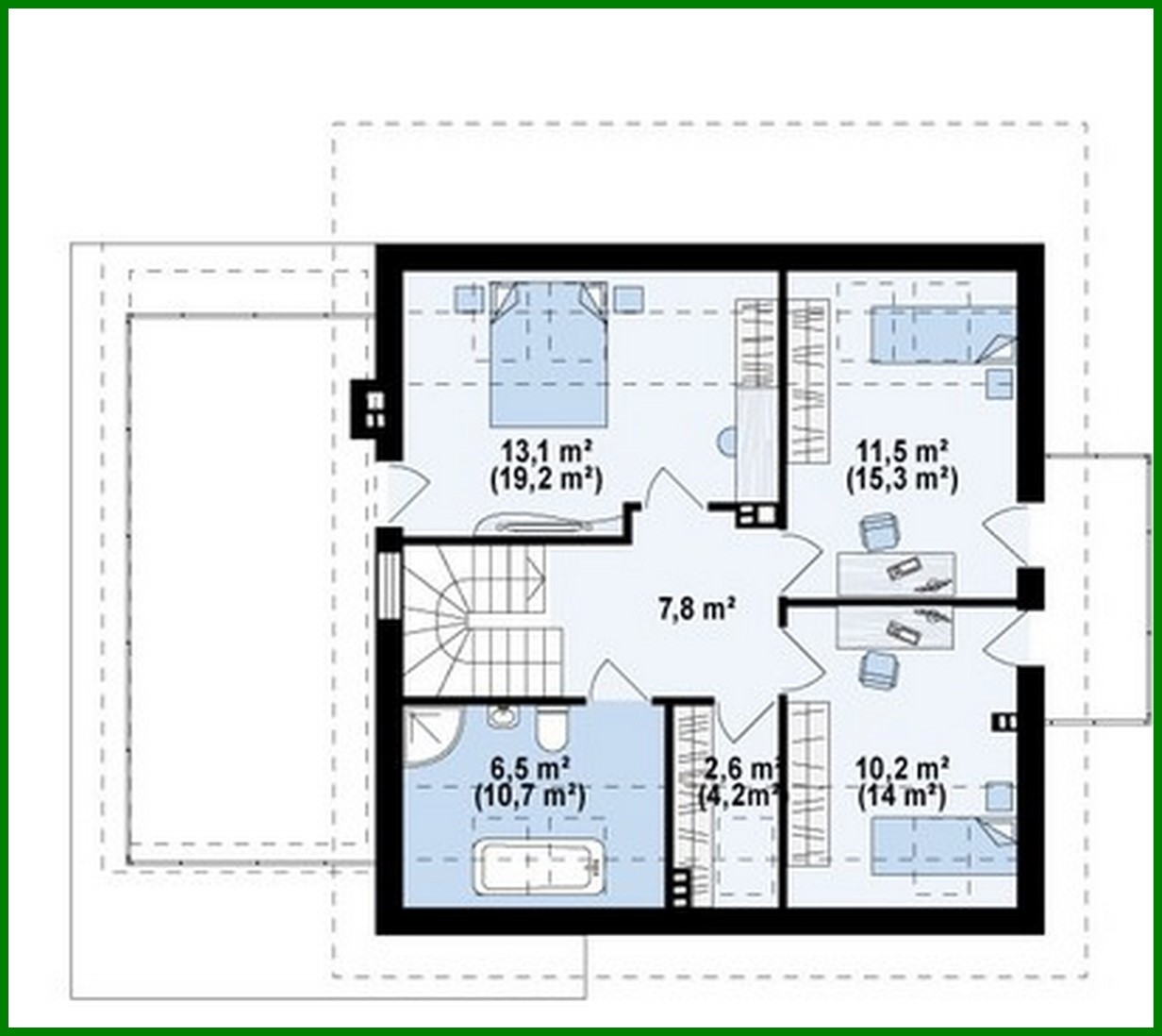
Project of a small one-story house with a terrace above the garage Número de plantas: 2 Área total: 179.60 m2 Área habitable: 130.80 m2 Altura de la casa: 8.12 m Altura del techo: 2.80 m Ángulo del techo: 38 ° Área del techo: 156.00 m2 Volumen: 533.00 m3 Número de dormitorios: 4 Número de baños: 2 Garaje: Garage for one car Tamaño mínimo del terreno (largo): 16.94 m Tamaño mínimo del terreno (ancho): 20.44 m Área construida: 134 m2 Materiales: Paredes: aerated concrete, ceramic blocks Overlap: monolithic overlap Roofing: ceramic tile, metal tile, cement-sand tile Foundation: monolithic tape band

¿Te interesa este plano?

Contáctanos para obtener los planos completos, un presupuesto de construcción o adaptar este diseño a tu terreno y necesidades.

Solicitar más información

Galería de visualizaciones