Proyecto de una acogedora y bonita casa de campo con ático y una fachada original

161 m² de área total / 1733 ft² 1 piso 4 dormitorios 3 baños
Proyecto de una acogedora y bonita casa de campo con ático y una fachada original
Click to view

Descripción

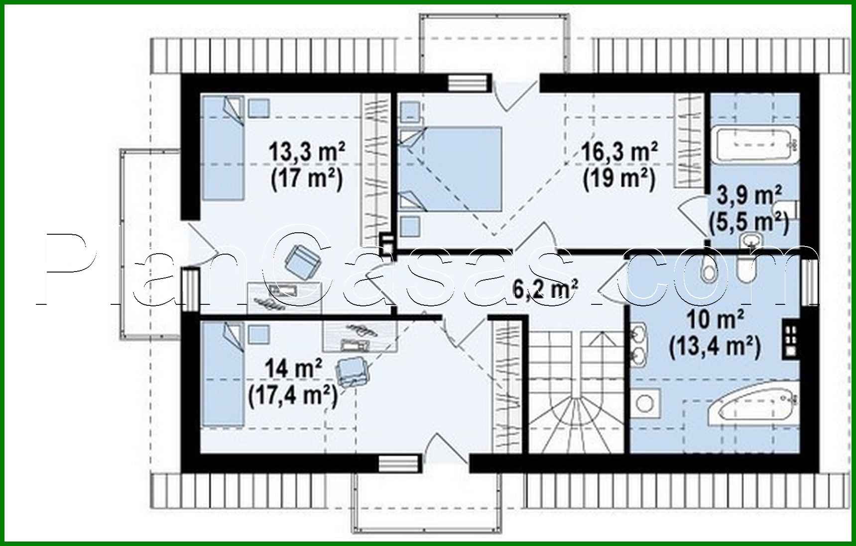
The project of a cozy beautiful cottage with an attic and an original facade Número de plantas: 2 Área total: 161.00 m2 Área habitable: 145.50 m2 Altura de la casa: 7.78 m Altura del techo: 2.80 m Ángulo del techo: 40 ° Área del techo: 173.00 m2 Volumen: 399.70 m3 Número de dormitorios: 4 Número de baños: 3 Tamaño mínimo del terreno (largo): 16.04 m Tamaño mínimo del terreno (ancho): 20.84 m Área construida: 103 m2 Materiales: Paredes: aerated concrete, ceramic blocks Overlap: monolithic overlap Roofing: ceramic tile, metal tile, cement-sand tile Foundation: monolithic tape band

¿Te interesa este plano?

Contáctanos para obtener los planos completos, un presupuesto de construcción o adaptar este diseño a tu terreno y necesidades.

Solicitar más información

Galería de visualizaciones