Proyecto de casa de campo con ático, garaje, oficina en la planta baja y mirador

175 m² de área total / 1884 ft² 1 piso 5 dormitorios 3 baños
Proyecto de casa de campo con ático, garaje, oficina en la planta baja y mirador
Click to view

Descripción

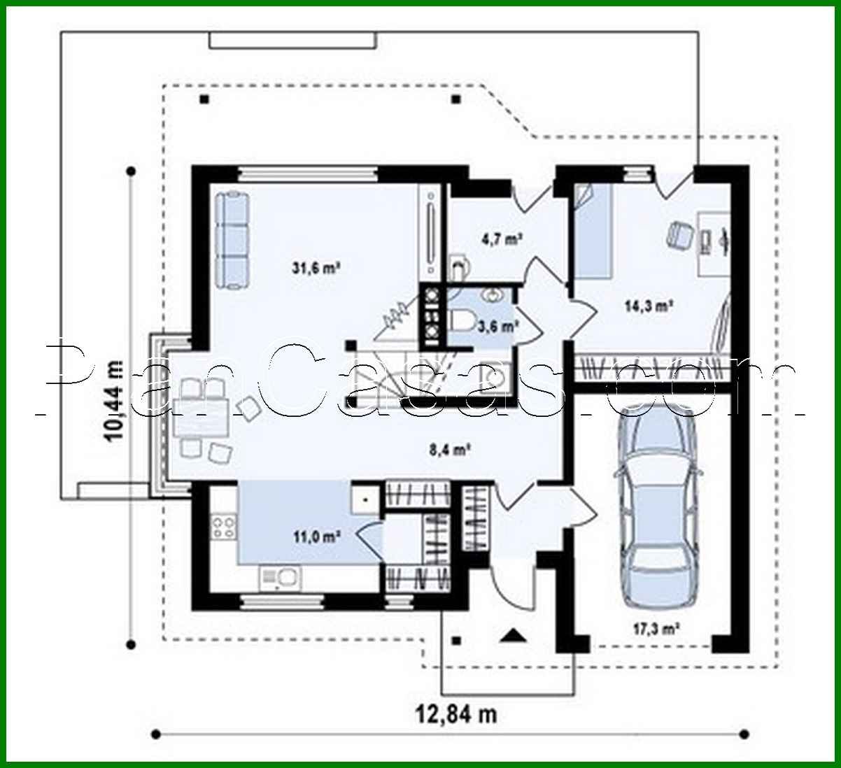
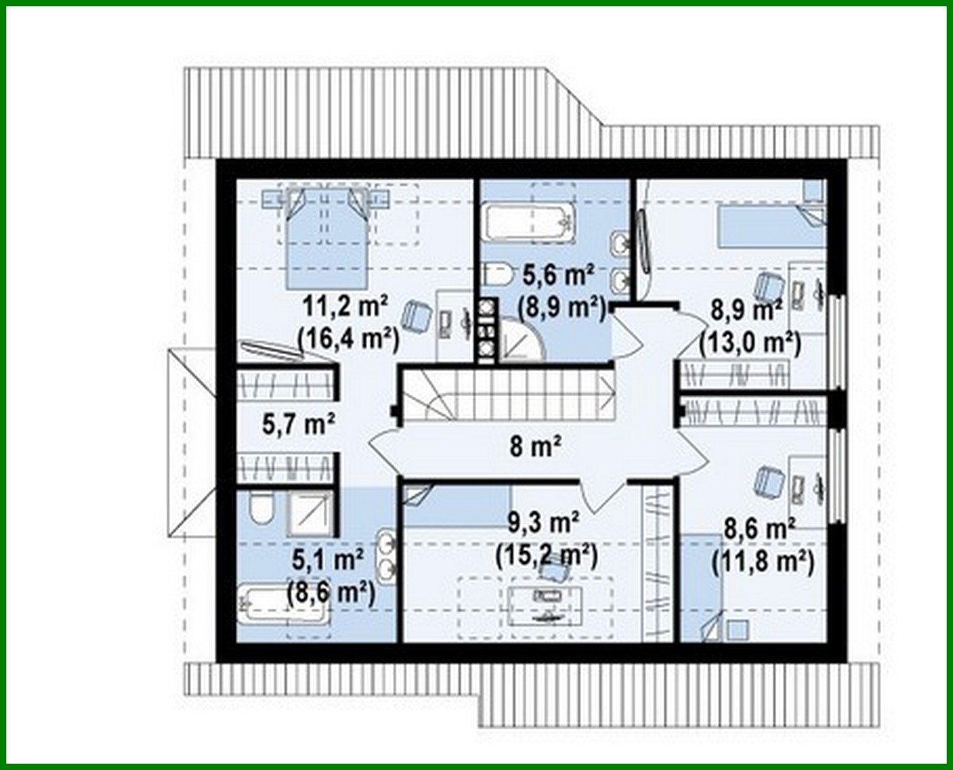
Cottage project with an attic, a garage, an office on the ground floor and a bay window Número de plantas: 2 Área total: 175.20 m2 Área habitable: 132.70 m2 Altura de la casa: 7.91 m Altura del techo: 2.80 m Ángulo del techo: 37 ° Área del techo: 183.00 m2 Volumen: 442.90 m3 Número de dormitorios: 5 Número de baños: 3 Garaje: Garage for one car Tamaño mínimo del terreno (largo): 18.44 m Tamaño mínimo del terreno (ancho): 20.84 m Área construida: 119 m2 Materiales: Paredes: aerated concrete, ceramic blocks Overlap: monolithic overlap Roofing: ceramic tile, metal tile, cement-sand tile Foundation: monolithic tape band

¿Te interesa este plano?

Contáctanos para obtener los planos completos, un presupuesto de construcción o adaptar este diseño a tu terreno y necesidades.

Solicitar más información

Galería de visualizaciones