Proyecto de una casa de campo para dos familias con entradas separadas

184 m² de área total / 1981 ft² 2 pisos 5 dormitorios 4 baños
Proyecto de una casa de campo para dos familias con entradas separadas
Click to view

Descripción

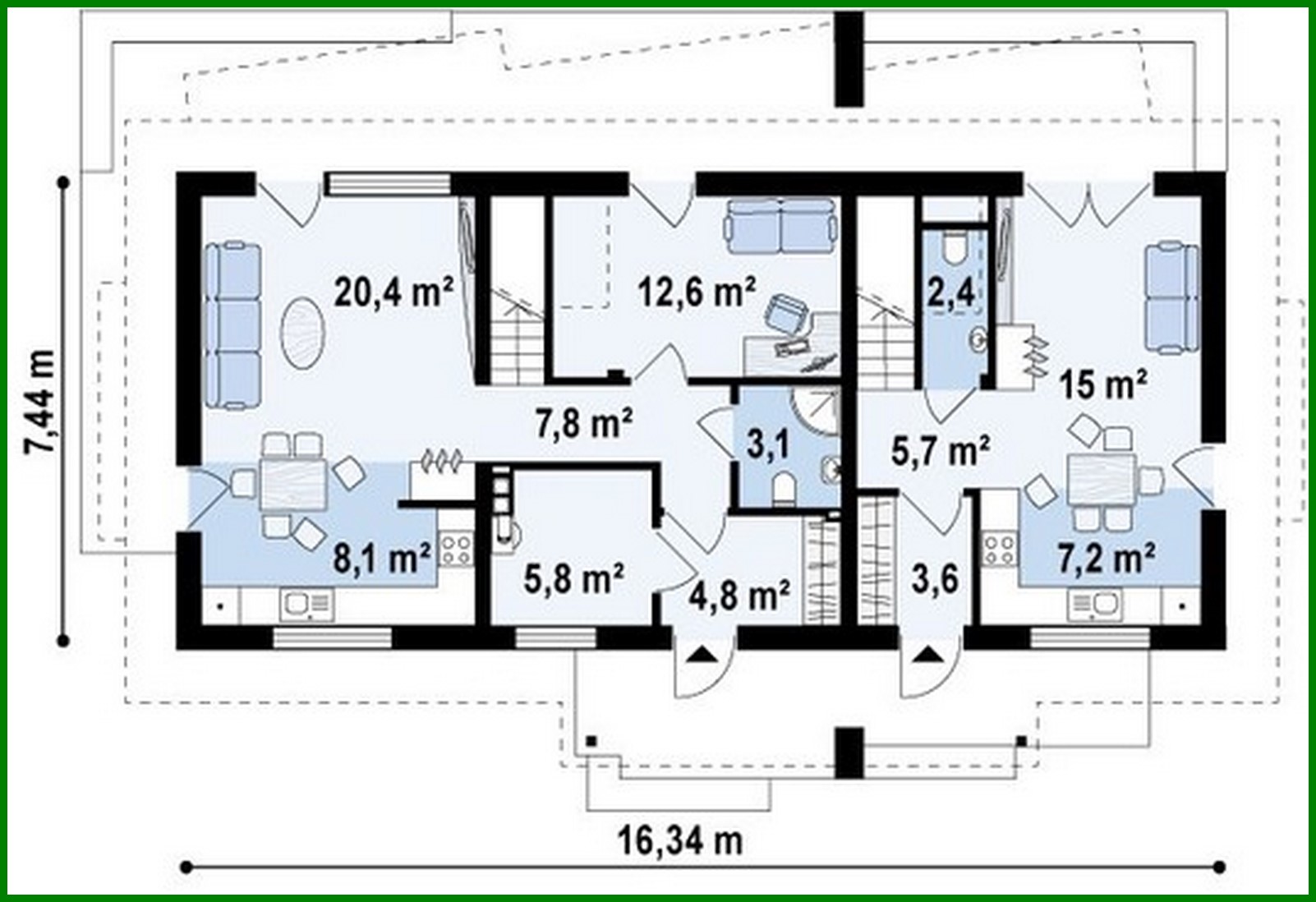
The project of a cottage for two families with separate entrances Número de plantas: 2 Área total: 184.20 m2 Área habitable: 162.20 m2 Altura de la casa: 7.69 m Altura del techo: 2.80 m Ángulo del techo: 40 ° Área del techo: 212.00 m2 Volumen: 455.00 m3 Número de dormitorios: 5 Número de baños: 4 Tamaño mínimo del terreno (largo): 15.44 m Tamaño mínimo del terreno (ancho): 24.34 m Área construida: 122 m2 Materiales: Paredes: aerated concrete, ceramic blocks Overlap: monolithic overlap Roofing: ceramic tile, metal tile, cement-sand tile Foundation: monolithic tape band

¿Te interesa este plano?

Contáctanos para obtener los planos completos, un presupuesto de construcción o adaptar este diseño a tu terreno y necesidades.

Solicitar más información

Galería de visualizaciones