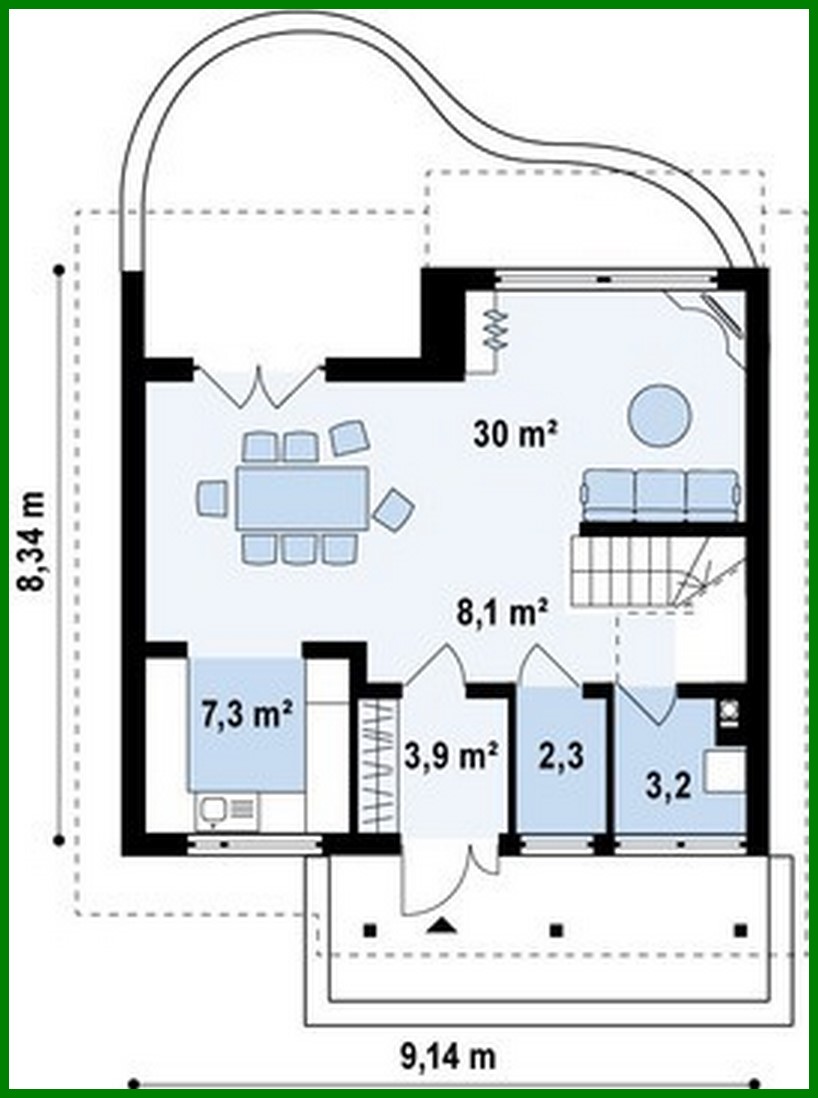
Proyecto de casa pequeña y práctica

112 m² de área total / 1206 ft² 2 pisos 3 dormitorios 2 baños
Proyecto de casa pequeña y práctica
Click to view

Descripción

Small practical house project Número de plantas: 2 Área total: 111.60 m2 Área habitable: 96.70 m2 Altura de la casa: 7.58 m Altura del techo: 2.80 m Ángulo del techo: 38 ° Área del techo: 133.00 m2 Volumen: 275.80 m3 Número de dormitorios: 3 Número de baños: 2 Tamaño mínimo del terreno (largo): 17.08 m Tamaño mínimo del terreno (ancho): 16.28 m Materiales: Paredes: aerated concrete, ceramic blocks Overlap: monolithic overlap Roofing: ceramic tile, metal tile, cement-sand tile Foundation: monolithic tape band

¿Te interesa este plano?

Contáctanos para obtener los planos completos, un presupuesto de construcción o adaptar este diseño a tu terreno y necesidades.

Solicitar más información

Galería de visualizaciones