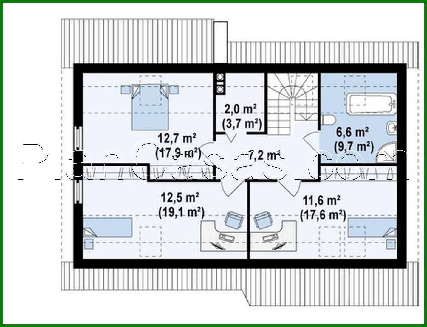
Proyecto de una casa de campo clásica con oficina y un baño grande

154 m² de área total / 1658 ft² 2 pisos 3 dormitorios 2 baños
Proyecto de una casa de campo clásica con oficina y un baño grande
Click to view

Descripción

Project of a classic cottage with an office and a large bathroom Número de plantas: 2 Área total: 154.00 m2 Área habitable: 129.00 m2 Altura de la casa: 7.24 m Altura del techo: 2.80 m Ángulo del techo: 38 ° Área del techo: 159.00 m2 Volumen: 364.20 m3 Número de dormitorios: 3 Número de baños: 2 Tamaño mínimo del terreno (largo): 15.00 m Tamaño mínimo del terreno (ancho): 19.00 m Materiales: Paredes: aerated concrete, ceramic blocks Overlap: monolithic overlap Roofing: ceramic tile, metal tile, cement-sand tile Foundation: monolithic tape band

¿Te interesa este plano?

Contáctanos para obtener los planos completos, un presupuesto de construcción o adaptar este diseño a tu terreno y necesidades.

Solicitar más información

Galería de visualizaciones