Proyecto de una gran mansión de estilo Art Nouveau

211 m² de área total / 2271 ft² 2 pisos 3 dormitorios 3 baños
Proyecto de una gran mansión de estilo Art Nouveau
Click to view

Descripción

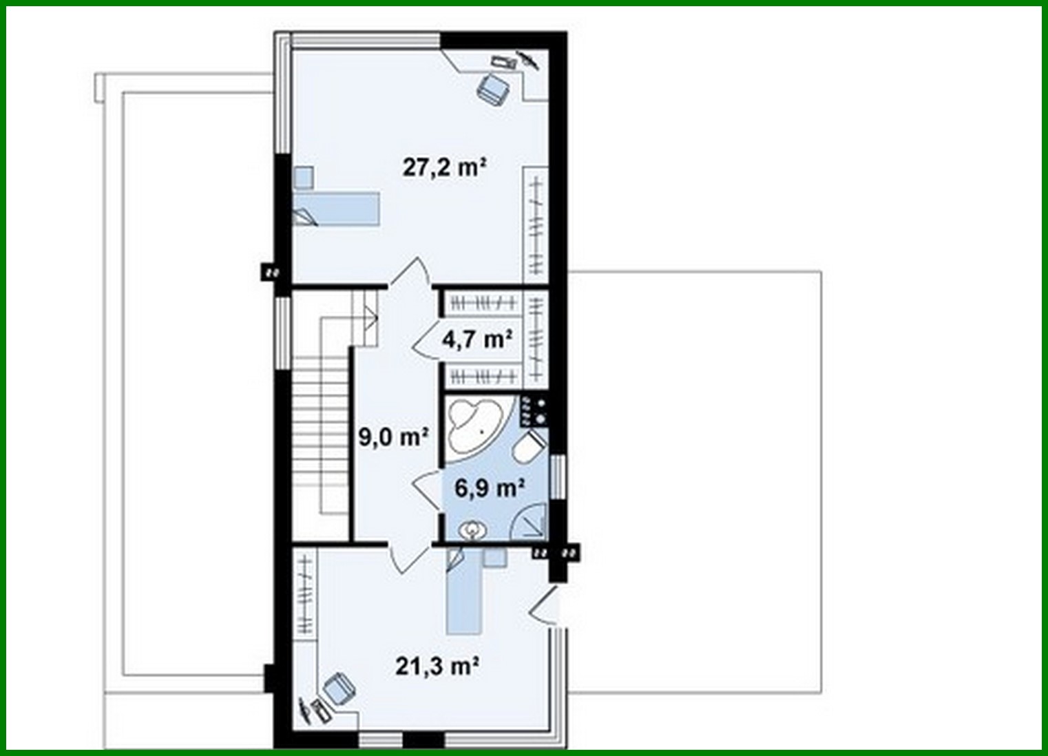
The project of a large mansion in the Art Nouveau style Número de plantas: 2 Área total: 211.40 m2 Área habitable: 184.40 m2 Altura de la casa: 7.10 m Altura del techo: 2.80 m Ángulo del techo: 3 ° Área del techo: 118.00 m2 Volumen: 495.00 m3 Número de dormitorios: 3 Número de baños: 3 Garaje: Garage for one car Tamaño mínimo del terreno (largo): 21.14 m Tamaño mínimo del terreno (ancho): 22.24 m Materiales: Paredes: aerated concrete, ceramic blocks Overlap: monolithic overlap Roofing: PVC membrane Foundation: monolithic tape band

¿Te interesa este plano?

Contáctanos para obtener los planos completos, un presupuesto de construcción o adaptar este diseño a tu terreno y necesidades.

Solicitar más información

Galería de visualizaciones