Proyecto de una casa de campo de dos plantas con garaje para un coche

222 m² de área total / 2390 ft² 2 pisos 5 dormitorios 2 baños
Proyecto de una casa de campo de dos plantas con garaje para un coche
Click to view

Descripción

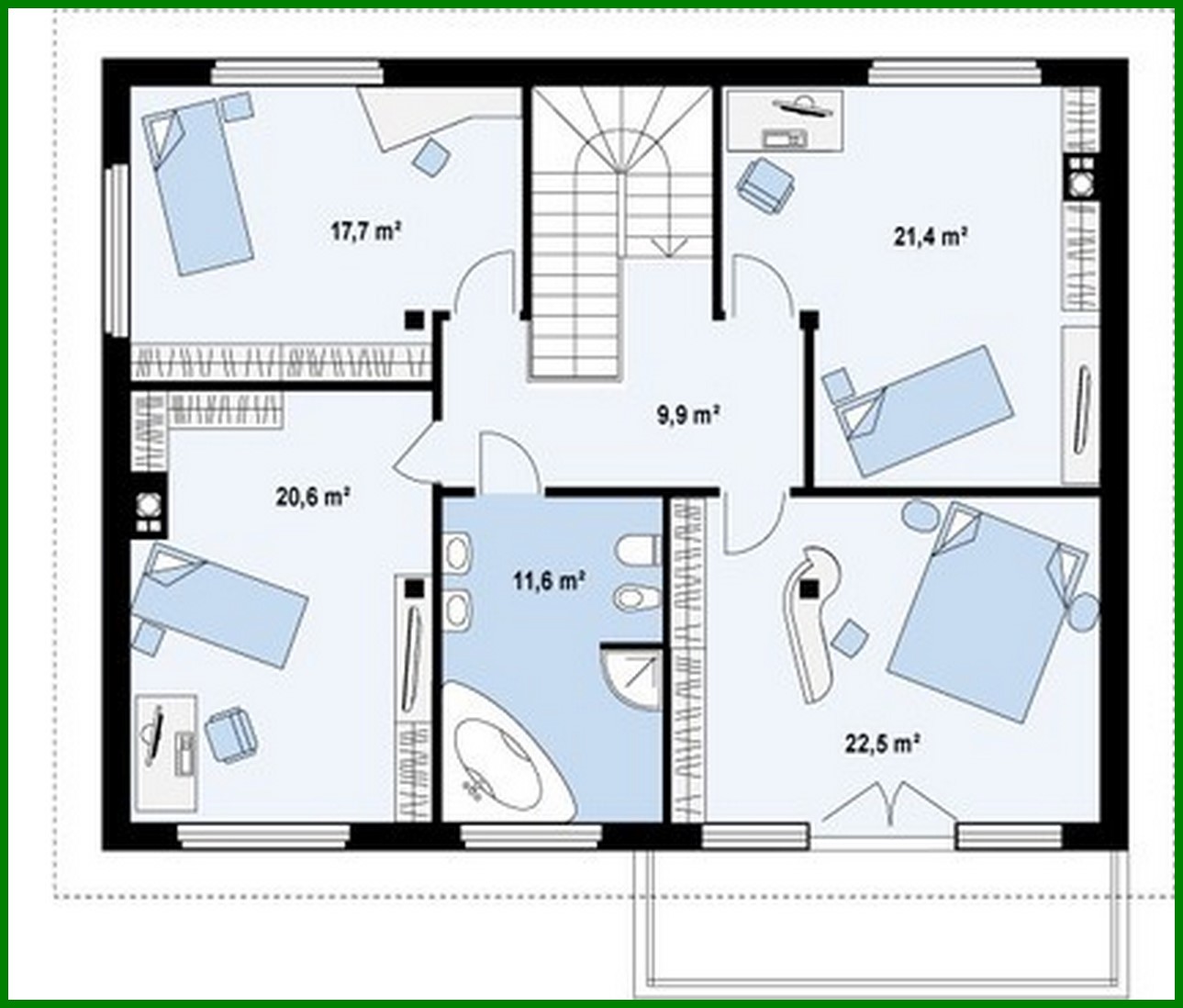
The project of a two-story cottage with a garage for one car Número de plantas: 2 Área total: 221.90 m2 Área habitable: 189.10 m2 Altura de la casa: 8.42 m Altura del techo: 2.80 m Ángulo del techo: 19 ° Área del techo: 170.00 m2 Volumen: 621.40 m3 Número de dormitorios: 5 Número de baños: 2 Garaje: Garage for one car Tamaño mínimo del terreno (largo): 19.96 m Tamaño mínimo del terreno (ancho): 21.08 m Materiales: Paredes: aerated concrete, ceramic blocks Overlap: monolithic overlap Roofing: ceramic tile, metal tile, cement-sand tile Foundation: monolithic tape band

¿Te interesa este plano?

Contáctanos para obtener los planos completos, un presupuesto de construcción o adaptar este diseño a tu terreno y necesidades.

Solicitar más información

Galería de visualizaciones