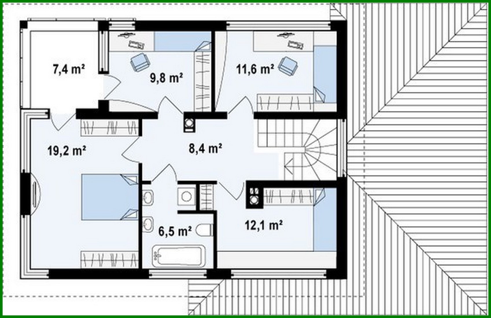
Proyecto de una casa moderna de dos plantas con sala de estar

164 m² de área total / 1765 ft² 2 pisos 4 dormitorios 2 baños
Proyecto de una casa moderna de dos plantas con sala de estar
Click to view

Descripción

The project of a two-story modern house with a living room Número de plantas: 2 Área total: 163.50 m2 Área habitable: 139.50 m2 Altura de la casa: 8.12 m Altura del techo: 2.80 m Ángulo del techo: 20 ° / 15 ° Área del techo: 190.00 m2 Volumen: 445.70 m3 Número de dormitorios: 4 Número de baños: 2 Garaje: Garage for one car Tamaño mínimo del terreno (largo): 22.48 m Tamaño mínimo del terreno (ancho): 16.88 m Materiales: Paredes: aerated concrete, ceramic blocks Overlap: monolithic overlap Roofing: ceramic tile, metal tile, cement-sand tile Foundation: monolithic tape band

¿Te interesa este plano?

Contáctanos para obtener los planos completos, un presupuesto de construcción o adaptar este diseño a tu terreno y necesidades.

Solicitar más información

Galería de visualizaciones