Proyecto de una gran mansión original y elegante con garaje para 2 coches

466 m² de área total / 5016 ft² 2 pisos 4 dormitorios 3 baños
Proyecto de una gran mansión original y elegante con garaje para 2 coches
Click to view

Descripción

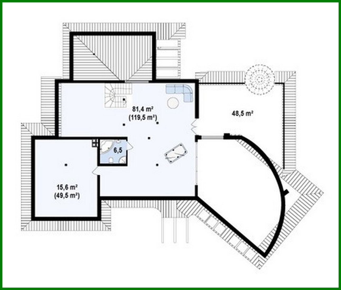
The project of a large original chic mansion with a garage for 2 cars Número de plantas: 2 Área total: 466.00 m2 Área habitable: 346.30 m2 Altura de la casa: 8.60 m Altura del techo: 2.80 m Ángulo del techo: 32 ° Área del techo: 520.00 m2 Volumen: 1166.00 m3 Número de dormitorios: 4 Número de baños: 3 Garaje: Two-car garage Tamaño mínimo del terreno (largo): 32.90 m Tamaño mínimo del terreno (ancho): 38.70 m Materiales: Paredes: aerated concrete, ceramic blocks Overlap: monolithic overlap Roofing: ceramic tile, metal tile, cement-sand tile Foundation: monolithic tape band

¿Te interesa este plano?

Contáctanos para obtener los planos completos, un presupuesto de construcción o adaptar este diseño a tu terreno y necesidades.

Solicitar más información

Galería de visualizaciones