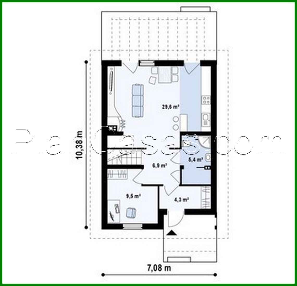
Proyecto de una casa con pared alta en el ático

110 m² de área total / 1184 ft² 1 piso 4 dormitorios 2 baños
Proyecto de una casa con pared alta en el ático
Click to view

Descripción

Project of a house with a high attic wall Número de plantas: 2 Área total: 110.20 m2 Área habitable: 107.05 m2 Altura de la casa: 7.38 m Altura del techo: 2.80 m Ángulo del techo: 30 ° Área del techo: 110.00 m2 Volumen: 290.00 m3 Número de dormitorios: 4 Número de baños: 2 Tamaño mínimo del terreno (largo): 18.38 m Tamaño mínimo del terreno (ancho): 13.08 m Materiales: Paredes: aerated concrete, ceramic blocks Overlap: monolithic overlap Roofing: ceramic tile, metal tile, cement-sand tile Foundation: monolithic tape band

¿Te interesa este plano?

Contáctanos para obtener los planos completos, un presupuesto de construcción o adaptar este diseño a tu terreno y necesidades.

Solicitar más información

Galería de visualizaciones