Proyecto de una casa tradicional con ático y mirador

180 m² de área total / 1938 ft² 1 piso 3 dormitorios 2 baños
Proyecto de una casa tradicional con ático y mirador
Click to view

Descripción

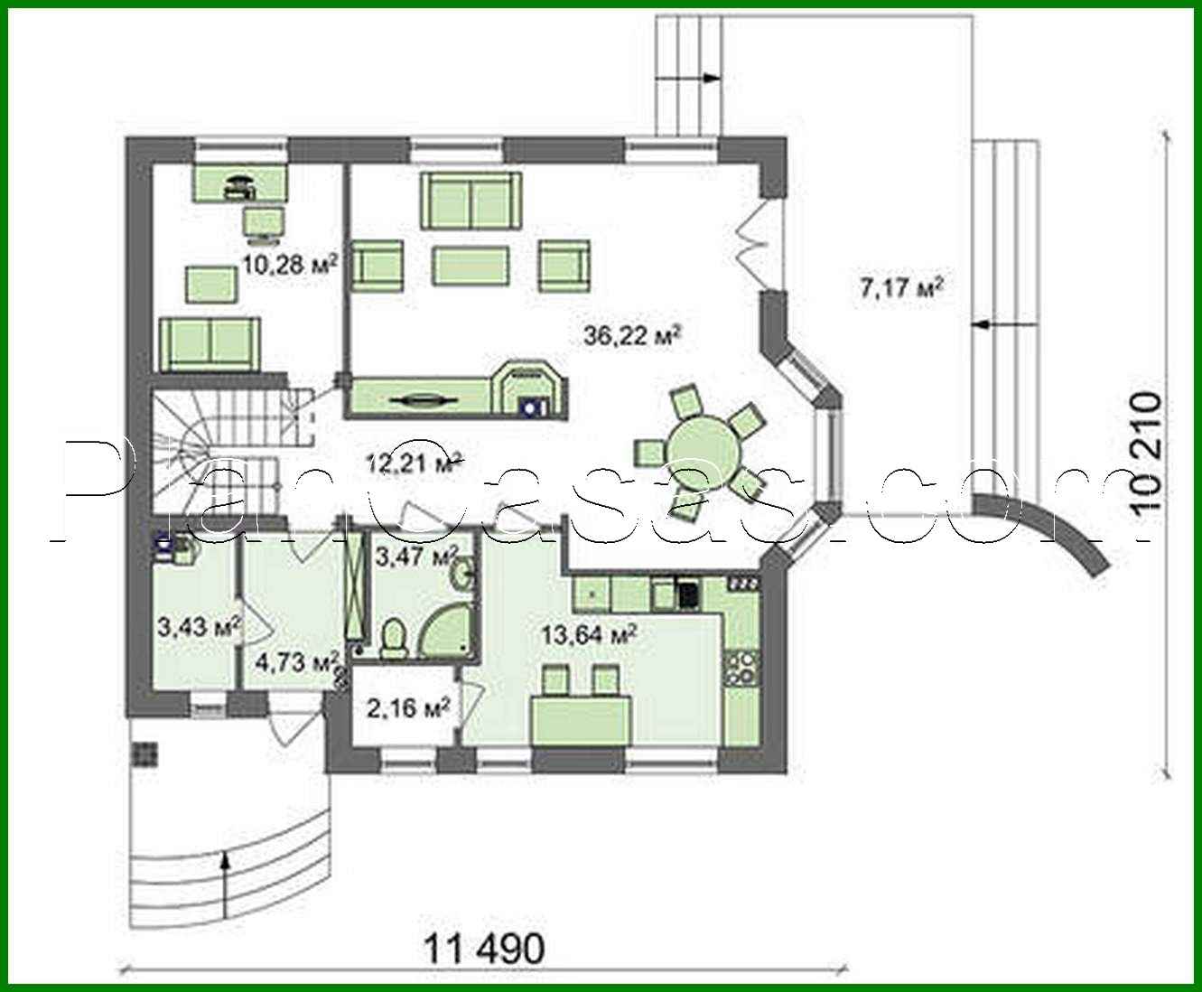
Project of a traditional house with an attic and a bay window Número de plantas: 2 Área total: 179.77 m2 Área habitable: 103.28 m2 Altura de la casa: 7.64 m Altura del techo: 2.80 m Ángulo del techo: 35 ° Área del techo: 175.75 m2 Volumen: 569.80 m3 Número de dormitorios: 3 Número de baños: 2 Tamaño mínimo del terreno (largo): 18.08 m Tamaño mínimo del terreno (ancho): 19.48 m Área construida: 148 m2 Materiales: Paredes: aerated concrete blocks Overlap: monolithic overlap Roofing: ceramic tile, metal tile, cement-sand tile Foundation: monolithic tape

¿Te interesa este plano?

Contáctanos para obtener los planos completos, un presupuesto de construcción o adaptar este diseño a tu terreno y necesidades.

Solicitar más información

Galería de visualizaciones