Proyecto de una pequeña casa de campo con ático

120 m² de área total / 1292 ft² 1 piso 4 dormitorios 2 baños
Proyecto de una pequeña casa de campo con ático
Click to view

Descripción

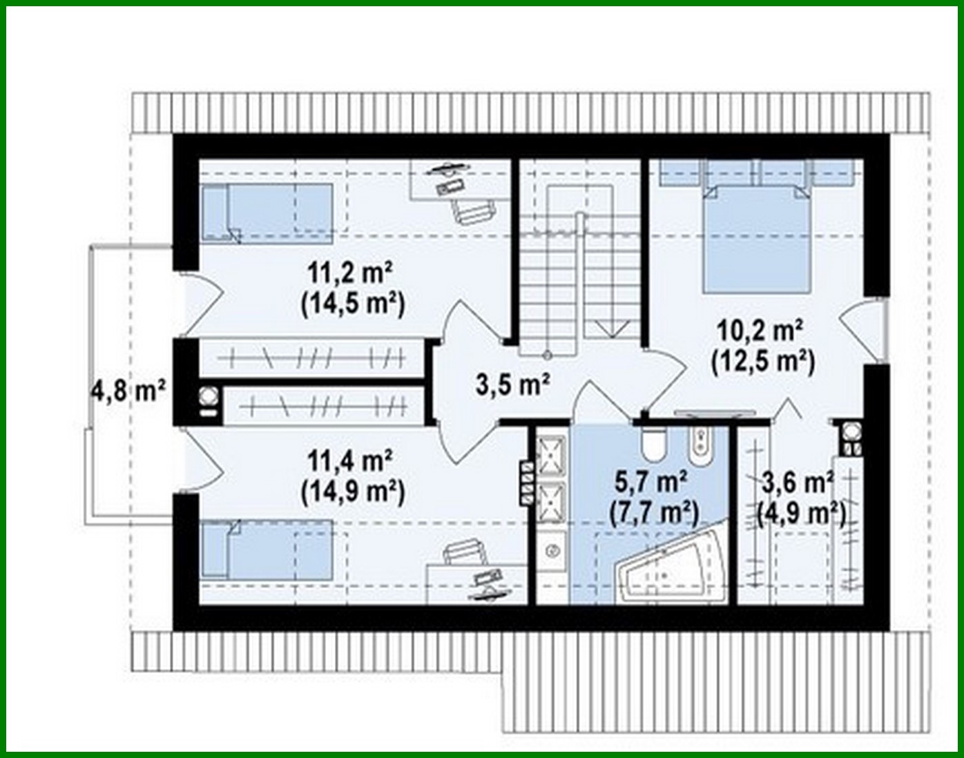
The project of a small cottage with an attic Número de plantas: 2 Área total: 120.30 m2 Área habitable: 107.60 m2 Altura de la casa: 7.69 m Altura del techo: 2.80 m Ángulo del techo: 40 ° Área del techo: 136.00 m2 Volumen: 296.80 m3 Número de dormitorios: 4 Número de baños: 2 Tamaño mínimo del terreno (largo): 15.44 m Tamaño mínimo del terreno (ancho): 18.74 m Materiales: Paredes: aerated concrete, ceramic blocks Overlap: monolithic overlap Roofing: ceramic tile, metal tile, cement-sand tile Foundation: monolithic tape band

¿Te interesa este plano?

Contáctanos para obtener los planos completos, un presupuesto de construcción o adaptar este diseño a tu terreno y necesidades.

Solicitar más información

Galería de visualizaciones