Proyecto de casa con sala de estar, terraza lateral y dormitorio adicional

178 m² de área total / 1916 ft² 2 pisos 3 dormitorios 2 baños
Proyecto de casa con sala de estar, terraza lateral y dormitorio adicional
Click to view

Descripción

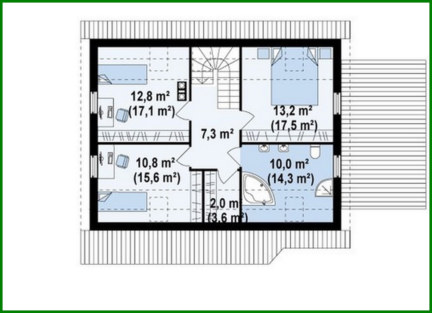
House project with living room, side terrace and extra bedroom Número de plantas: 2 Área total: 178.00 m2 Área habitable: 137.00 m2 Altura de la casa: 7.72 m Altura del techo: 2.80 m Ángulo del techo: 40 ° Área del techo: 189.00 m2 Volumen: 436.20 m3 Número de dormitorios: 3 Número de baños: 2 Garaje: Garage for one car Tamaño mínimo del terreno (largo): 21.00 m Tamaño mínimo del terreno (ancho): 17.00 m Materiales: Paredes: aerated concrete, ceramic blocks Overlap: monolithic overlap Roofing: ceramic tile, metal tile, cement-sand tile Foundation: monolithic tape band

¿Te interesa este plano?

Contáctanos para obtener los planos completos, un presupuesto de construcción o adaptar este diseño a tu terreno y necesidades.

Solicitar más información

Galería de visualizaciones