Proyecto de una casa con garaje para un coche

150 m² de área total / 1615 ft² 2 pisos 3 dormitorios 2 baños
Proyecto de una casa con garaje para un coche
Click to view

Descripción

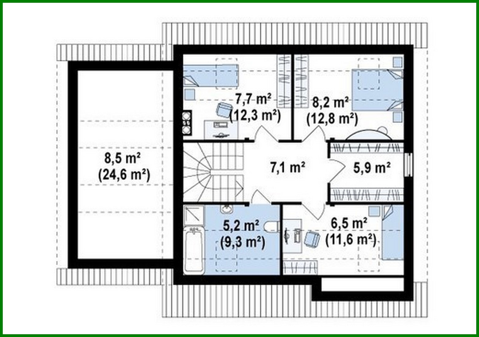
The project of a cottage with a garage for one car Número de plantas: 2 Área total: 150.00 m2 Área habitable: 106.00 m2 Altura de la casa: 7.00 m Altura del techo: 2.80 m Ángulo del techo: 38 ° Área del techo: 182.00 m2 Volumen: 371.00 m3 Número de dormitorios: 3 Número de baños: 2 Garaje: Garage for one car Tamaño mínimo del terreno (largo): 17.48 m Tamaño mínimo del terreno (ancho): 20.48 m Materiales: Paredes: aerated concrete, ceramic blocks Overlap: monolithic overlap Roofing: ceramic tile, metal tile, cement-sand tile Foundation: monolithic tape band

¿Te interesa este plano?

Contáctanos para obtener los planos completos, un presupuesto de construcción o adaptar este diseño a tu terreno y necesidades.

Solicitar más información

Galería de visualizaciones