Proyecto de una casa con mirador en el comedor

118 m² de área total / 1270 ft² 2 pisos 4 dormitorios 2 baños
Proyecto de una casa con mirador en el comedor
Click to view

Descripción

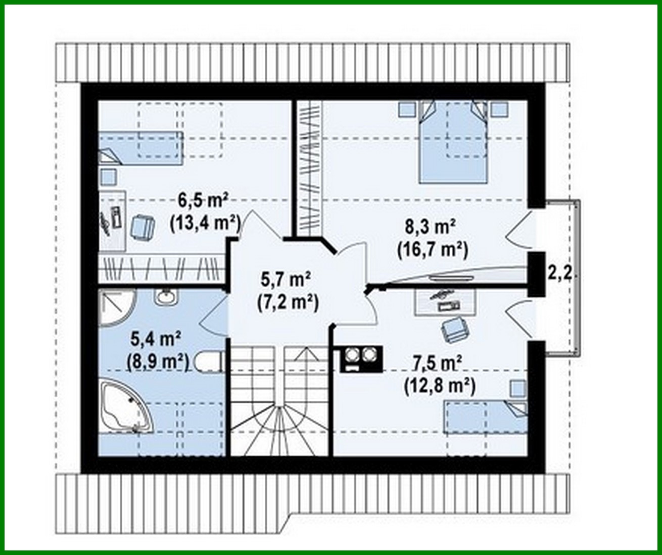
The project of a cottage with a bay window in the dining room Número de plantas: 2 Área total: 118.00 m2 Área habitable: 96.00 m2 Altura de la casa: 7.14 m Altura del techo: 2.80 m Ángulo del techo: 40 ° Área del techo: 127.00 m2 Volumen: 275.00 m3 Número de dormitorios: 4 Número de baños: 2 Tamaño mínimo del terreno (largo): 15.00 m Tamaño mínimo del terreno (ancho): 17.00 m Materiales: Paredes: aerated concrete, ceramic blocks Overlap: monolithic overlap Roofing: ceramic tile, metal tile, cement-sand tile Foundation: monolithic tape band

¿Te interesa este plano?

Contáctanos para obtener los planos completos, un presupuesto de construcción o adaptar este diseño a tu terreno y necesidades.

Solicitar más información

Galería de visualizaciones