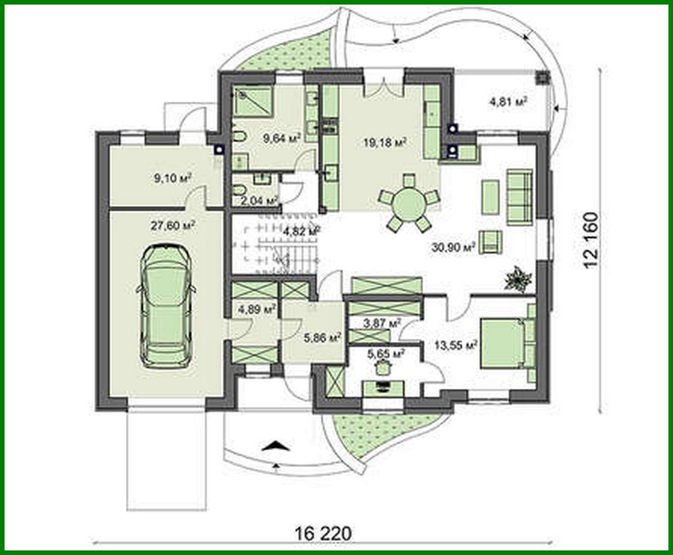
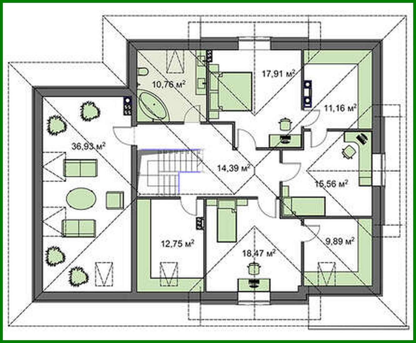
Proyecto de una casa con ático y mirador (ventanal saliente) con un área de 289 m²

290 m² de área total / 3122 ft² 2 pisos 4 dormitorios 3 baños
Proyecto de una casa con ático y mirador (ventanal saliente) con un área de 289 m²
Click to view

Descripción

The project of a cottage with an attic and bay window with an area of 289 sq.m Número de plantas: 2 Área total: 289.73 m2 Área habitable: 138.97 m2 Altura de la casa: 9.42 m Altura del techo: 2.80 m Ángulo del techo: 40 ° Área del techo: 325.00 m2 Número de dormitorios: 4 Número de baños: 3 Garaje: Garage for one car Tamaño mínimo del terreno (largo): 20.50 m Tamaño mínimo del terreno (ancho): 24.50 m Área construida: 229.5 m2 Materiales: Paredes: aerated concrete blocks Overlap: monolithic overlap Roofing: metal tile, ceramic tile, bitumen Foundation: monolithic slab

¿Te interesa este plano?

Contáctanos para obtener los planos completos, un presupuesto de construcción o adaptar este diseño a tu terreno y necesidades.

Solicitar más información

Galería de visualizaciones