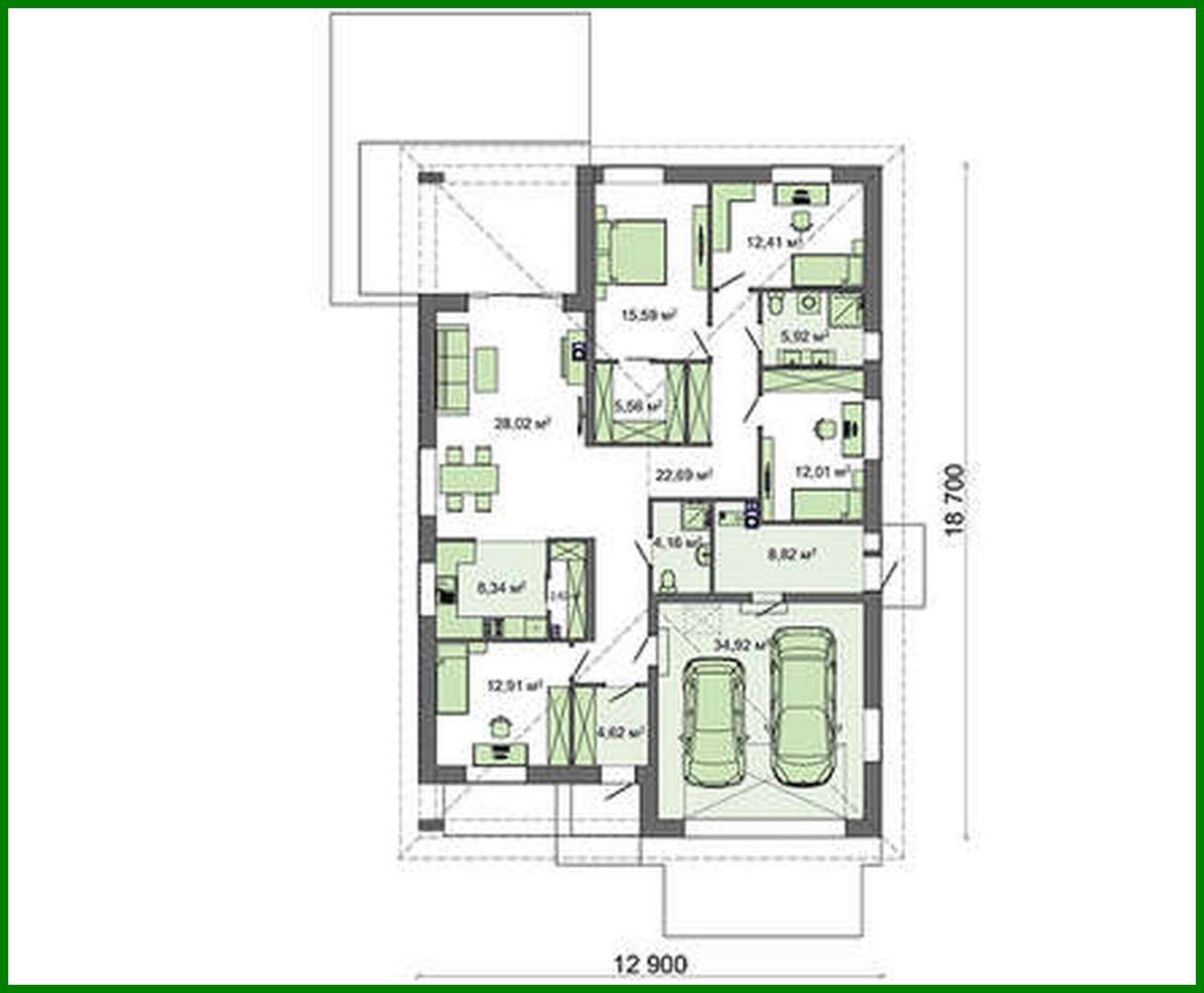
Proyecto de un edificio residencial moderno de una planta con un área total de 178 m²

179 m² de área total / 1927 ft² 1 piso 4 dormitorios 2 baños
Proyecto de un edificio residencial moderno de una planta con un área total de 178 m²
Click to view

Descripción

Project of a one-story modern residential building with a total area of ​​178 squares Número de plantas: 1 Área total: 178.60 m2 Área habitable: 80.94 m2 Altura de la casa: 7.30 m Altura del techo: 2.80 m Ángulo del techo: 30 ° Área del techo: 307.22 m2 Volumen: 866.84 m3 Número de dormitorios: 4 Número de baños: 2 Garaje: Two-car garage Tamaño mínimo del terreno (largo): 27.00 m Tamaño mínimo del terreno (ancho): 21.00 m Materiales: Paredes: aerated concrete, ceramic blocks Techo: on wooden beams Roofing: metal tile, ceramic tile, bitumen Foundation: monolithic tape

¿Te interesa este plano?

Contáctanos para obtener los planos completos, un presupuesto de construcción o adaptar este diseño a tu terreno y necesidades.

Solicitar más información

Galería de visualizaciones