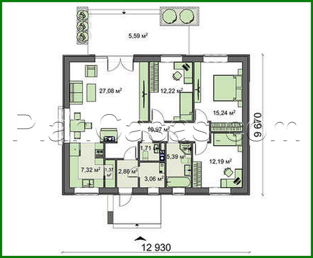
Casa señorial de una planta de forma rectangular 13 por 10

105 m² de área total / 1130 ft² 1 piso 3 dormitorios 2 baños
Casa señorial de una planta de forma rectangular 13 por 10
Click to view

Descripción

One-storey manor of rectangular shape 13 by 10 Número de plantas: 1 Área total: 105.00 m2 Área habitable: 66.73 m2 Altura de la casa: 6.50 m Altura del techo: 2.80 m Ángulo del techo: 30 ° Área del techo: 186.12 m2 Volumen: 630.00 m3 Número de dormitorios: 3 Número de baños: 2 Tamaño mínimo del terreno (largo): 21.00 m Tamaño mínimo del terreno (ancho): 18.00 m Área construida: 156.89 m2 Materiales: Paredes: aerated concrete blocks Techo: on wooden beams Roofing: metal tile, ceramic tile, bitumen Foundation: monolithic tape

¿Te interesa este plano?

Contáctanos para obtener los planos completos, un presupuesto de construcción o adaptar este diseño a tu terreno y necesidades.

Solicitar más información

Galería de visualizaciones