Casa de campo clásica y bonita con un balcón encantador

239 m² de área total / 2573 ft² 2 pisos 5 dormitorios 2 baños
Casa de campo clásica y bonita con un balcón encantador
Click to view

Descripción

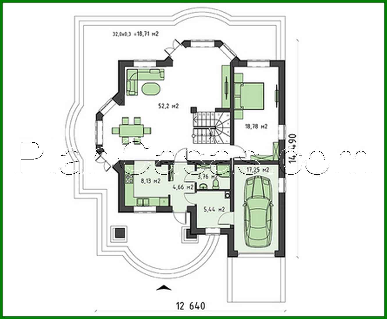
Classic beautiful cottage with a cute balcony Número de plantas: 2 Área total: 238.84 m2 Área habitable: 153.46 m2 Altura de la casa: 8.40 m Altura del techo: 2.80 m Ángulo del techo: 40 ° Área del techo: 189.95 m2 Número de dormitorios: 5 Número de baños: 2 Garaje: Garage for one car Tamaño mínimo del terreno (largo): 18.00 m Tamaño mínimo del terreno (ancho): 17.00 m Área construida: 227.93 m2 Materiales: Paredes: aerated concrete blocks Overlap: monolithic overlap Roofing: metal tile, ceramic tile Foundation: monolithic tape

¿Te interesa este plano?

Contáctanos para obtener los planos completos, un presupuesto de construcción o adaptar este diseño a tu terreno y necesidades.

Solicitar más información

Galería de visualizaciones