Proyecto de una casa blanca como la nieve de dos plantas con columnas y balcones con un área total de 133 m²

133 m² de área total / 1432 ft² 2 pisos 4 dormitorios 2 baños
Proyecto de una casa blanca como la nieve de dos plantas con columnas y balcones con un área total de 133 m²
Click to view

Descripción

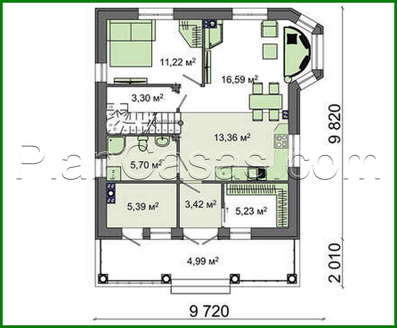
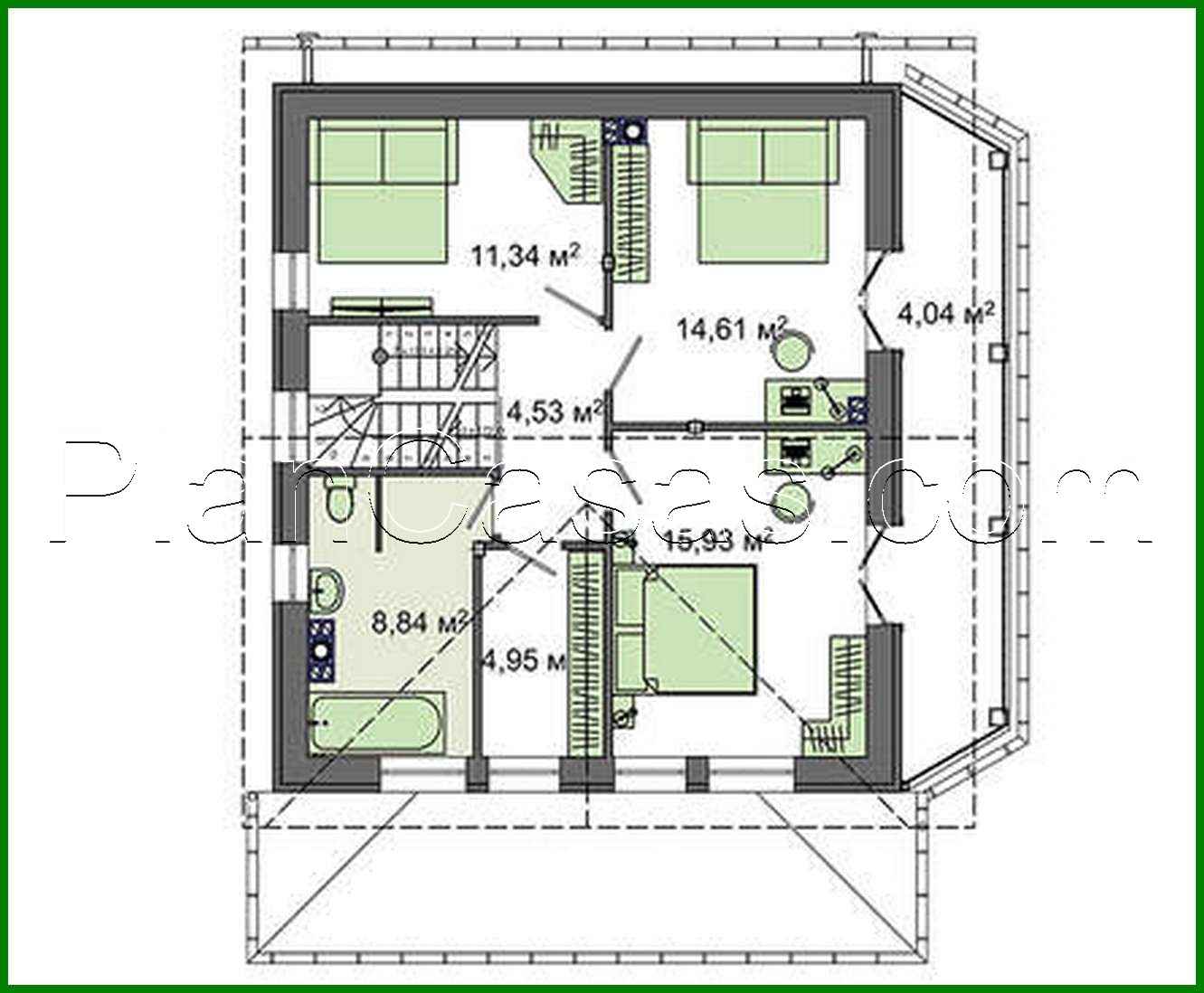
The project of a snow-white house in two floors with columns and balconies with a total area of 133 square meters. m Número de plantas: 2 Área total: 133.44 m2 Área habitable: 69.69 m2 Altura de la casa: 8.70 m Altura del techo: 3.00 m Ángulo del techo: 35/25 ° Área del techo: 162.50 m2 Número de dormitorios: 4 Número de baños: 2 Área construida: 106.4 m2 Materiales: Paredes: aerated concrete blocks Overlap: monolithic overlap Roofing: metal Foundation: monolithic tape

¿Te interesa este plano?

Contáctanos para obtener los planos completos, un presupuesto de construcción o adaptar este diseño a tu terreno y necesidades.

Solicitar más información

Galería de visualizaciones