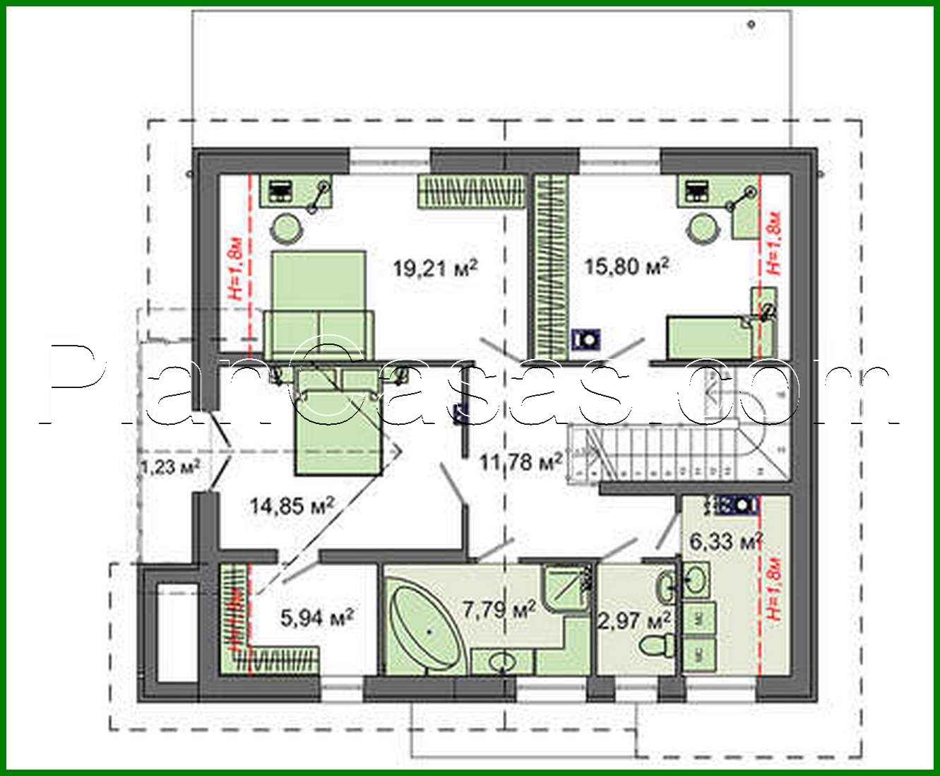
Proyecto de una casa compacta de dos plantas de 174 m² con exterior blanco y negro

173 m² de área total / 1862 ft² 2 pisos 3 dormitorios 3 baños
Proyecto de una casa compacta de dos plantas de 174 m² con exterior blanco y negro
Click to view

Descripción

The project of a compact two-story cottage with an area of 174 square meters. m with black and white exterior Número de plantas: 2 Área total: 173.18 m2 Área habitable: 87.90 m2 Altura de la casa: 9.76 m Altura del techo: 2.80 m Ángulo del techo: 42 ° Área del techo: 241.00 m2 Número de dormitorios: 3 Número de baños: 3 Tamaño mínimo del terreno (largo): 21.00 m Tamaño mínimo del terreno (ancho): 21.00 m Área construida: 158.36 m2 Materiales: Paredes: aerated concrete blocks Overlap: monolithic overlap Roofing: metal Foundation: monolithic tape

¿Te interesa este plano?

Contáctanos para obtener los planos completos, un presupuesto de construcción o adaptar este diseño a tu terreno y necesidades.

Solicitar más información

Galería de visualizaciones