Proyecto de una casa pequeña

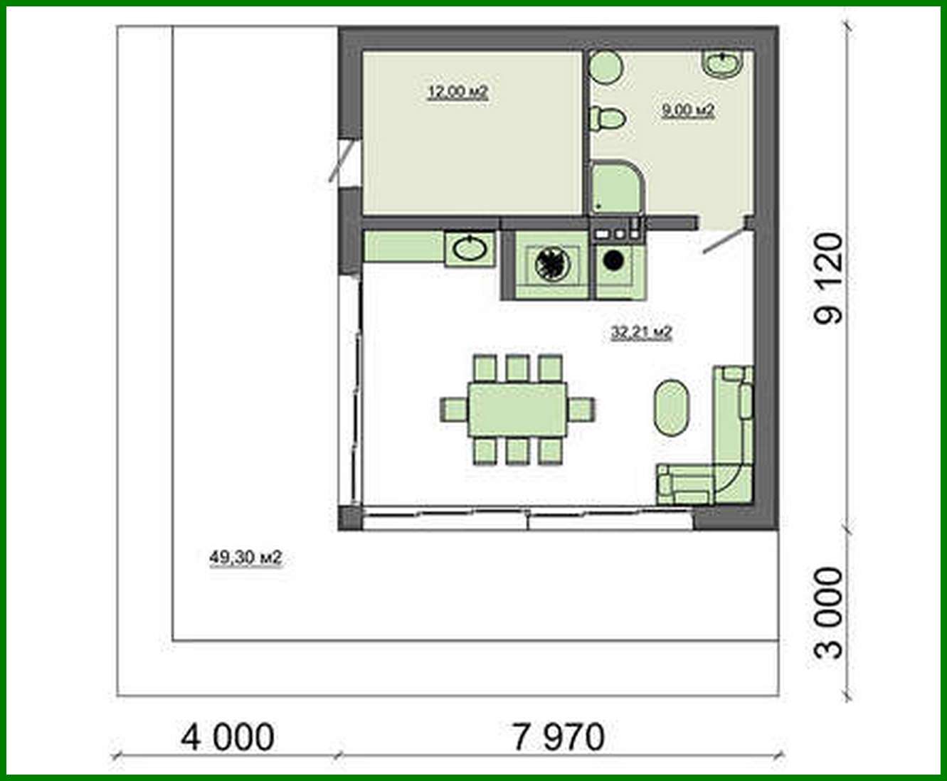
69 m² de área total / 743 ft² 1 piso dormitorios 1 baño
Proyecto de una casa pequeña
Click to view

Descripción

Número de plantas: 1 Área total: 68.67 m2 Altura de la casa: 5.05 m Altura del techo: 2.80 m Ángulo del techo: 20 ° Área del techo: 101.00 m2 Número de baños: 1 Área construida: 145.08 m2 Materiales: Paredes: aerated concrete blocks Techo: on wooden beams Roofing: metal tile, ceramic tile, bitumen Foundation: monolithic tape544. Small house project

¿Te interesa este plano?

Contáctanos para obtener los planos completos, un presupuesto de construcción o adaptar este diseño a tu terreno y necesidades.

Solicitar más información

Galería de visualizaciones