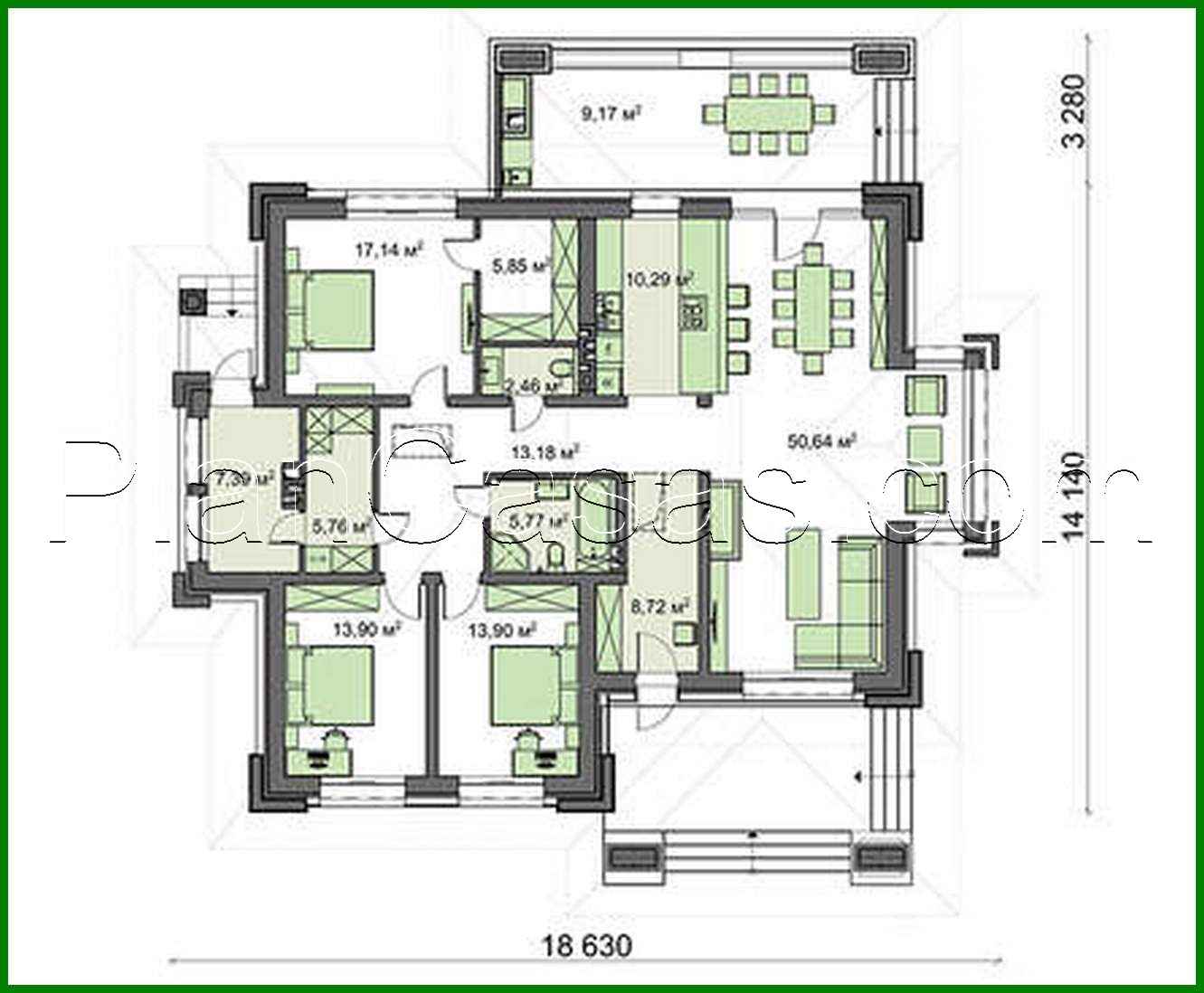
Proyecto de una casa compacta de 164 m² con tres dormitorios privados

164 m² de área total / 1765 ft² 1 piso 3 dormitorios 2 baños
Proyecto de una casa compacta de 164 m² con tres dormitorios privados
Click to view

Descripción

The project of a compact house with an area of 164 square meters. m with three private bedrooms Número de plantas: 1 Área total: 164.24 m2 Área habitable: 95.58 m2 Altura de la casa: 6.10 m Altura del techo: 3.00 m Roof angle: 12/13/16 ° Área del techo: 393.02 m2 Número de dormitorios: 3 Número de baños: 2 Tamaño mínimo del terreno (largo): 25.50 m Tamaño mínimo del terreno (ancho): 27.00 m Área construida: 275.6 m2 Materiales: Paredes: brick Techo: on wooden beams Roof: shingles Foundation: monolithic slab

¿Te interesa este plano?

Contáctanos para obtener los planos completos, un presupuesto de construcción o adaptar este diseño a tu terreno y necesidades.

Solicitar más información

Galería de visualizaciones