Proyecto de una casa de campo de 74 m² para una estancia cómoda

74 m² de área total / 797 ft² 1 piso dormitorios 2 baños
Proyecto de una casa de campo de 74 m² para una estancia cómoda
Click to view

Descripción

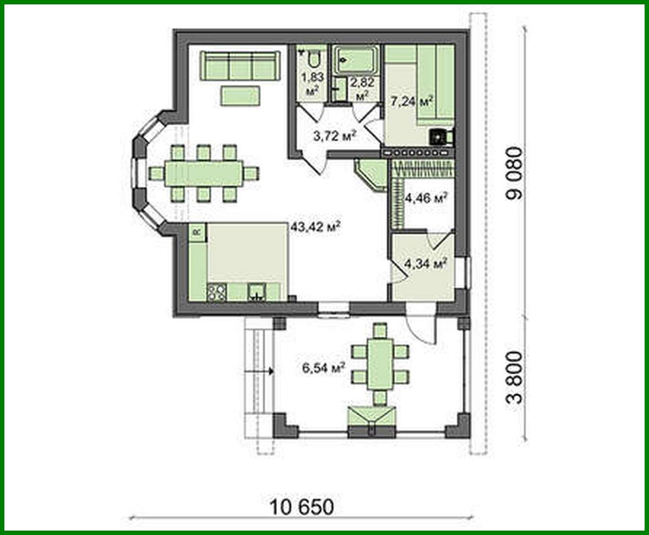
The project of a country house of 74 sq.m for a comfortable stay Número de plantas: 1 Área total: 74.37 m2 Altura de la casa: 5.98 m Altura del techo: 2.80 m Ángulo del techo: 20/28 ° Área del techo: 156.50 m2 Número de baños: 2 Tamaño mínimo del terreno (largo): 21.00 m Tamaño mínimo del terreno (ancho): 19.00 m Área construida: 116.44 m2 Materiales: Paredes: Aerated concrete blocks, brick Overlap: monolithic overlap Roof: shingles Foundation: monolithic slab

¿Te interesa este plano?

Contáctanos para obtener los planos completos, un presupuesto de construcción o adaptar este diseño a tu terreno y necesidades.

Solicitar más información

Galería de visualizaciones