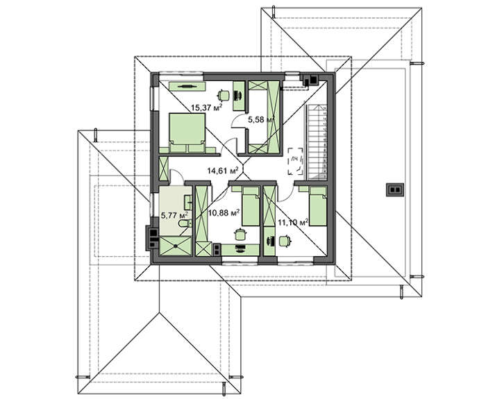
Proyecto de una casa de dos plantas para una familia grande de 188 m² con cuatro dormitorios

189 m² de área total / 2034 ft² 2 pisos 4 dormitorios 3 baños
Proyecto de una casa de dos plantas para una familia grande de 188 m² con cuatro dormitorios
Click to view

Descripción

538. The project of a two-story house for a large family with an area of 188 square meters with four bedrooms Número de plantas: 2 Área total: 188.81 m2 Área habitable: 100.24 m2 Altura de la casa: 9.08 m Altura del techo: 2.80 m Ángulo del techo: 25 ° Área del techo: 303.13 m2 Número de dormitorios: 4 Número de baños: 3 Tamaño mínimo del terreno (largo): 24.00 m Tamaño mínimo del terreno (ancho): 27.00 m Área construida: 260.48 m2 Materiales: Paredes: aerated concrete blocks Overlap: monolithic overlap Roof: shingles Foundation: monolithic tape

¿Te interesa este plano?

Contáctanos para obtener los planos completos, un presupuesto de construcción o adaptar este diseño a tu terreno y necesidades.

Solicitar más información

Galería de visualizaciones