Proyecto de una casa de ladrillo de dos plantas de 262 m² con balcones modernos

262 m² de área total / 2820 ft² 2 pisos 5 dormitorios 3 baños
Proyecto de una casa de ladrillo de dos plantas de 262 m² con balcones modernos
Click to view

Descripción

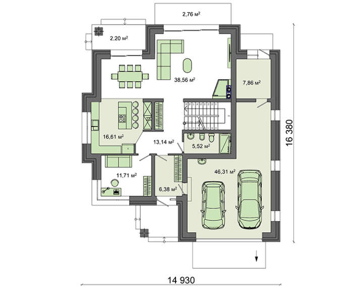
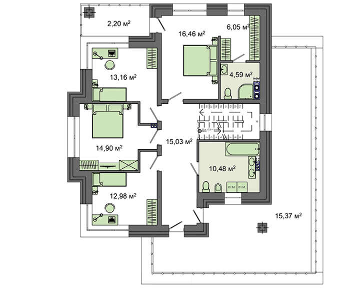
The project of a two-story brick house with an area of 262 square meters. m with modern balconies Número de plantas: 2 Área total: 262.27 m2 Área habitable: 107.77 m2 Altura de la casa: 9.94 m Altura del techo: 3.00 m Ángulo del techo: 25 ° Área del techo: 225.50 m2 Número de dormitorios: 5 Número de baños: 3 Garaje: Two-car garage Tamaño mínimo del terreno (largo): 24.50 m Tamaño mínimo del terreno (ancho): 23.00 m Área construida: 245.95 m2 Materiales: Paredes: brick Overlap: monolithic overlap Roofing: metal tile, ceramic tile, bitumen Foundation: monolithic tape

¿Te interesa este plano?

Contáctanos para obtener los planos completos, un presupuesto de construcción o adaptar este diseño a tu terreno y necesidades.

Solicitar más información

Galería de visualizaciones