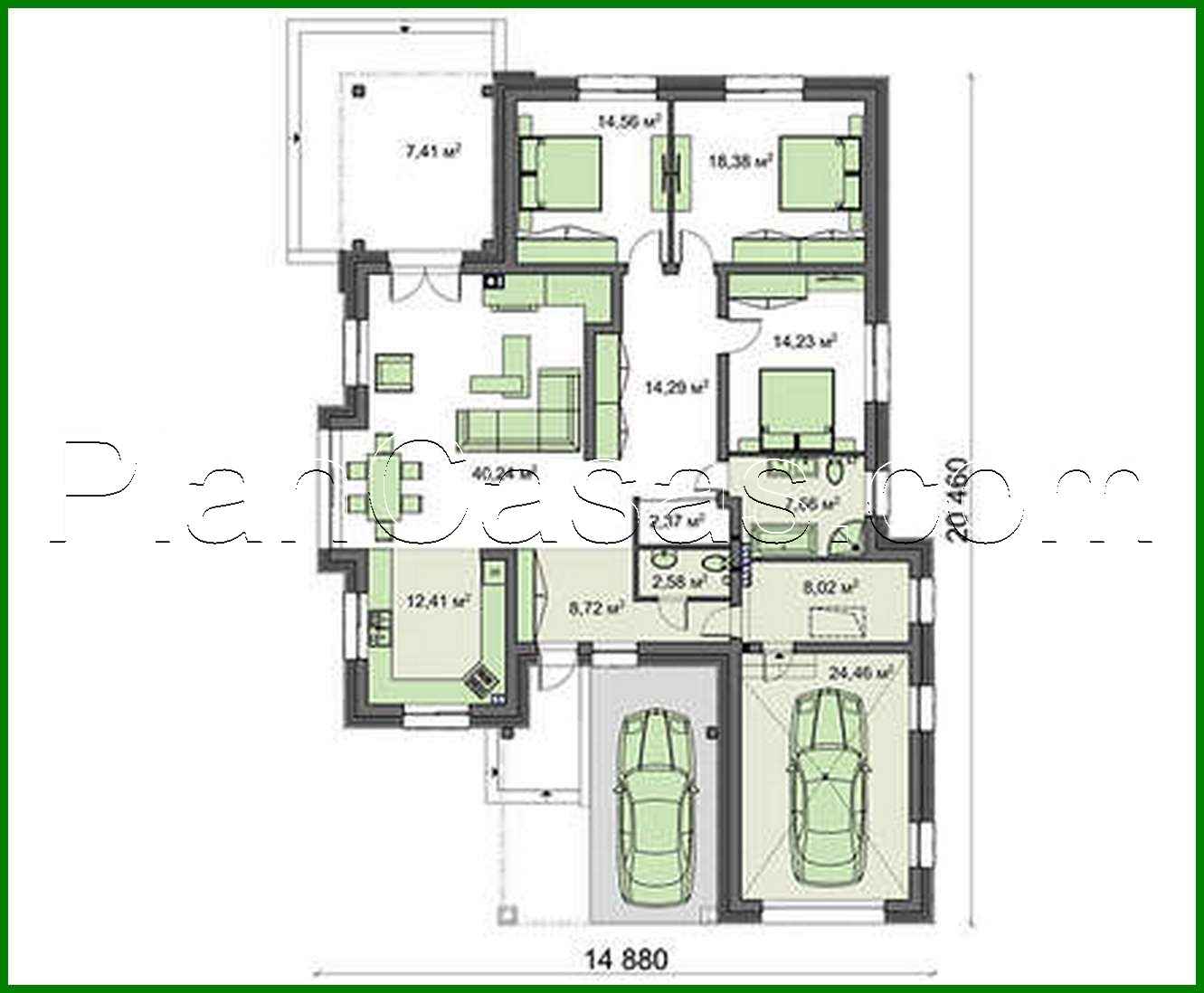
Casa de una planta

175 m² de área total / 1884 ft² 1 piso 3 dormitorios 2 baños
Casa de una planta
Click to view

Descripción

Número de plantas: 1 Área total: 175.33 m2 Área habitable: 87.41 m2 Altura de la casa: 7.25 m Altura del techo: 3.00 m Ángulo del techo: 30 ° Área del techo: 334.59 m2 Número de dormitorios: 3 Número de baños: 2 Garaje: Garage for one car Tamaño mínimo del terreno (largo): 23.50 m Tamaño mínimo del terreno (ancho): 28.50 m Área construida: 277.36 m2 Materiales: Paredes: aerated concrete blocks Techo: on wooden beams Roofing: metal tile, ceramic tile, bitumen Foundation: monolithic tape

¿Te interesa este plano?

Contáctanos para obtener los planos completos, un presupuesto de construcción o adaptar este diseño a tu terreno y necesidades.

Solicitar más información

Galería de visualizaciones