Casa de campo de dos plantas con garaje subterráneo

231 m² de área total / 2486 ft² 2 pisos 3 dormitorios 4 baños
Casa de campo de dos plantas con garaje subterráneo
Click to view

Descripción

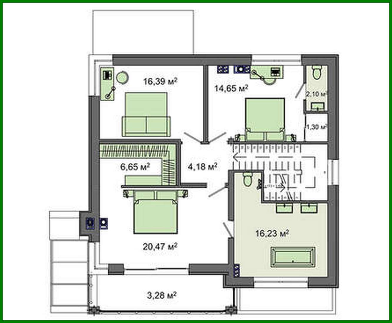
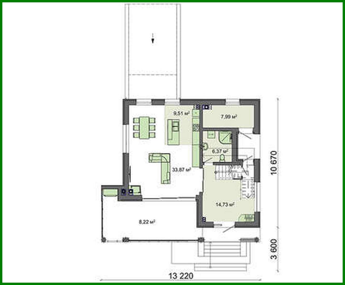
Two-story cottage with an underground garage Número de plantas: 3 Área total: 231.19 m2 Área habitable: 85.38 m2 Altura de la casa: 9.47 m Altura del techo: 2.50 m Ángulo del techo: 24 ° Área del techo: 187.50 m2 Número de dormitorios: 3 Número de baños: 4 Garaje: Garage for one car Tamaño mínimo del terreno (largo): 21.50 m Tamaño mínimo del terreno (ancho): 30.00 m Área construida: 194.69 m2 Área de la planta baja: 65.25 m2 Materiales: Paredes: aerated concrete blocks Overlap: floor slabs Roofing: metal tile, ceramic tile, bitumen Foundation: monolithic slab

¿Te interesa este plano?

Contáctanos para obtener los planos completos, un presupuesto de construcción o adaptar este diseño a tu terreno y necesidades.

Solicitar más información

Galería de visualizaciones