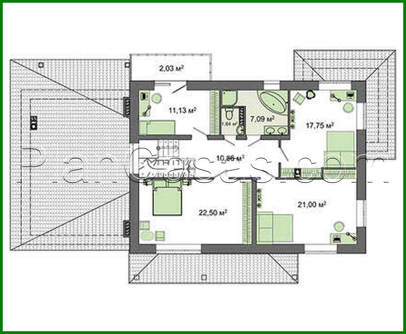
Plano de una gran casa de campo con sótano de 285 m²

284 m² de área total / 3057 ft² 2 pisos 5 dormitorios 3 baños
Plano de una gran casa de campo con sótano de 285 m²
Click to view

Descripción

Plan of a huge cottage with a basement with a total area of 285 square meters. m Número de plantas: 3 Área total: 284.32 m2 Área habitable: 126.99 m2 Altura de la casa: 9.76 m Altura del techo: 2.80 m Ángulo del techo: 30/22 ° Área del techo: 250.50 m2 Número de dormitorios: 5 Número de baños: 3 Garaje: Two-car garage Tamaño mínimo del terreno (largo): 30.50 m Tamaño mínimo del terreno (ancho): 19.00 m Área construida: 270.24 m2 Área de la planta baja: 66.31 m2 Materiales: Paredes: aerated concrete blocks Overlap: monolithic overlap Roofing: metal Foundation: monolithic tape

¿Te interesa este plano?

Contáctanos para obtener los planos completos, un presupuesto de construcción o adaptar este diseño a tu terreno y necesidades.

Solicitar más información

Galería de visualizaciones