Proyecto de una moderna casa de dos plantas de 250 m² en estilo minimalista

250 m² de área total / 2691 ft² 2 pisos 5 dormitorios 3 baños
Proyecto de una moderna casa de dos plantas de 250 m² en estilo minimalista
Click to view

Descripción

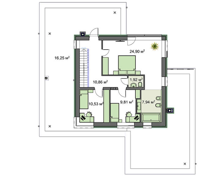
The project of a modern two-story cottage with an area of 250 square meters. m in the style of minimalism Número de plantas: 2 Área total: 249.92 m2 Área habitable: 110.63 m2 Altura de la casa: 7.28 m Altura del techo: 2.80 m Ángulo del techo: 1.7 / 3.5 ° Área del techo: 113.35 m2 Número de dormitorios: 5 Número de baños: 3 Garaje: Two-car garage Tamaño mínimo del terreno (largo): 23.00 m Tamaño mínimo del terreno (ancho): 24.00 m Área construida: 283.3 m2 Materiales: Paredes: aerated concrete blocks Overlap: monolithic overlap Roofing: PVC membrane Foundation: Piles

¿Te interesa este plano?

Contáctanos para obtener los planos completos, un presupuesto de construcción o adaptar este diseño a tu terreno y necesidades.

Solicitar más información

Galería de visualizaciones