Espectacular edificio residencial con un techo original

273 m² de área total / 2939 ft² 2 pisos 4 dormitorios 2 baños
Espectacular edificio residencial con un techo original
Click to view

Descripción

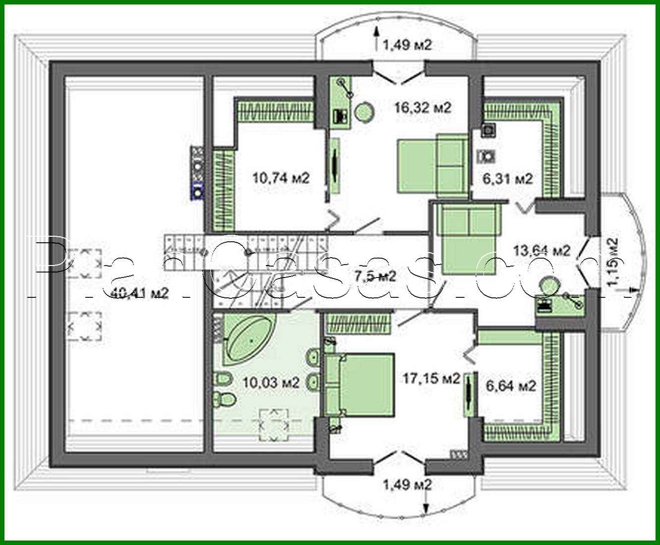
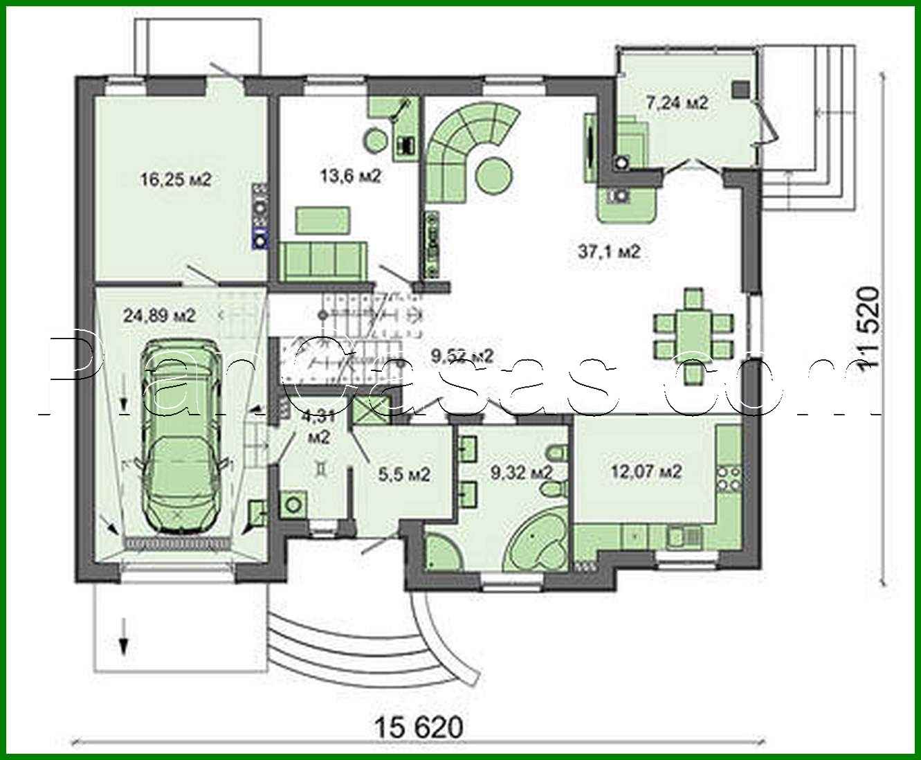
Spectacular residential building with an original roof Número de plantas: 2 Área total: 272.67 m2 Área habitable: 138.22 m2 Altura de la casa: 8.68 m Altura del techo: 2.80 m Ángulo del techo: 40 ° Área del techo: 349.50 m2 Número de dormitorios: 4 Número de baños: 2 Garaje: Garage for one car Área construida: 202.6 m2 Materiales: Paredes: aerated concrete blocks Overlap: monolithic overlap Roofing: metal Foundation: monolithic tape

¿Te interesa este plano?

Contáctanos para obtener los planos completos, un presupuesto de construcción o adaptar este diseño a tu terreno y necesidades.

Solicitar más información

Galería de visualizaciones