Proyecto de casa de campo con garaje integrado y 2 dormitorios

261 m² de área total / 2809 ft² 2 pisos 5 dormitorios 2 baños
Proyecto de casa de campo con garaje integrado y 2 dormitorios
Click to view

Descripción

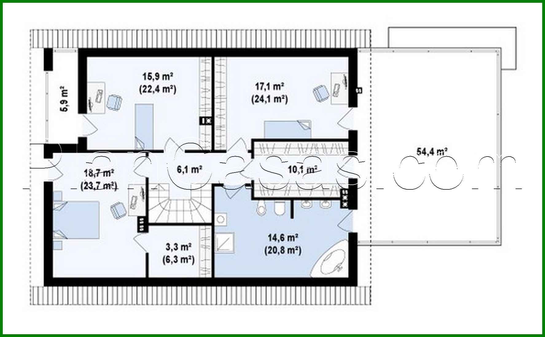
Cottage project with built-in garage and 2 bedrooms Número de plantas: 2 Área total: 261.20 m2 Área habitable: 200.90 m2 Altura de la casa: 7.72 m Altura del techo: 2.80 m Ángulo del techo: 30 ° Área del techo: 201.15 m2 Volumen: 652.64 m3 Número de dormitorios: 5 Número de baños: 2 Garaje: Two-car garage Tamaño mínimo del terreno (largo): 18.44 m Tamaño mínimo del terreno (ancho): 27.04 m Materiales: Paredes: aerated concrete, ceramic blocks Overlap: monolithic overlap Roofing: ceramic tile, metal tile, cement-sand tile Foundation: monolithic tape band

¿Te interesa este plano?

Contáctanos para obtener los planos completos, un presupuesto de construcción o adaptar este diseño a tu terreno y necesidades.

Solicitar más información

Galería de visualizaciones